highlight_off
Riferimento annuncio 95517 info

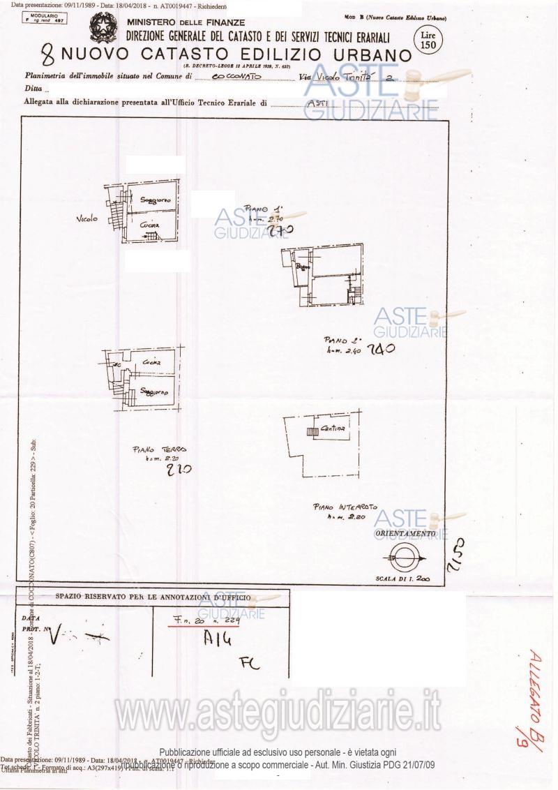
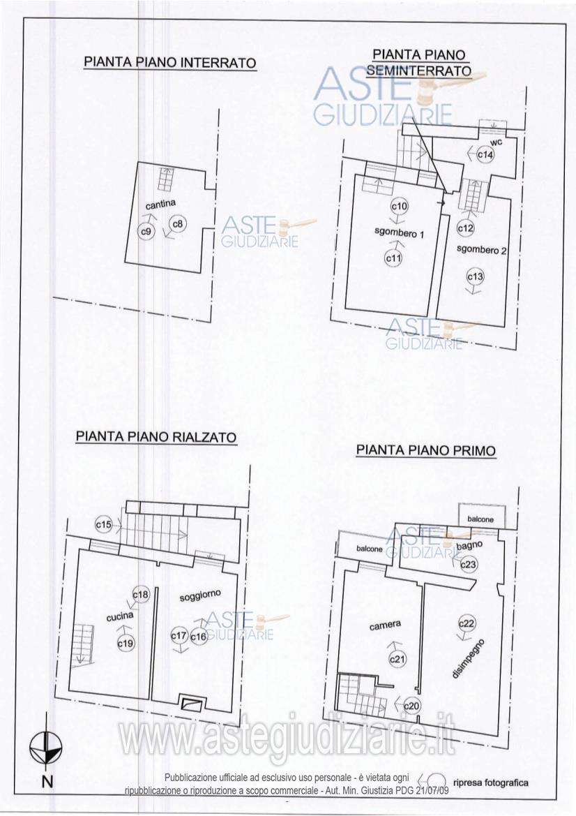
Appartamento Vicolo Trinità, 2, 14023 Cocconato (AT)

5,00
113,00
0
€ 14.100
Vendita all'asta Senza incanto, con gara telematica asincrona - LOTTO 3: Lotto C: Fabbricato con annesso terreno d’insidienza ubicato nel centro storico urbano. Prezzo base € 14.100,00 (offerta minima € 10.575,00). Data inizio operazioni di vendita: 18/02/2026 ore 15:00. Giudice Pasquale Perfetti. Professionista delegato alla vendita Avv. Luigi Florio - Email "segreteria@studioavvocatoflorio.it"; Tel. 0141-33222. Custode Giudiziario Istituto Vendite Giudiziarie - Email "richiestevisite.asti@ivgpiemonte.it"; Tel. 011485338-0114731714. Rif. Tribunale di Asti - Contenzioso civile n. 1798/2019

Superficie 113,00 mq
Vani 5,00
Bagni
Piano 0

Tipologia di vendita Giudiziaria
Modalità di vendita Asincrona telematica
Termine presentazione offerte 17/02/2026 ore 12:00
Data e ora inizio gara 18/02/2026 ore 15:00
Codice ID astegiudiziarie.it 4216008
5,00
113,00
0
€ 14.100

Ti interessa questa vendita?

north_east

Clicca qui per essere indirizzato alla scheda sul sito di provenienza

Bene di astegiudiziarie.it