highlight_off
Riferimento annuncio 130474 info

Appartamento Via Giacomo Matteotti, 58045 Paganico GR, Italia, 58045 Civitella Paganico (GR)

0
€ 285.723
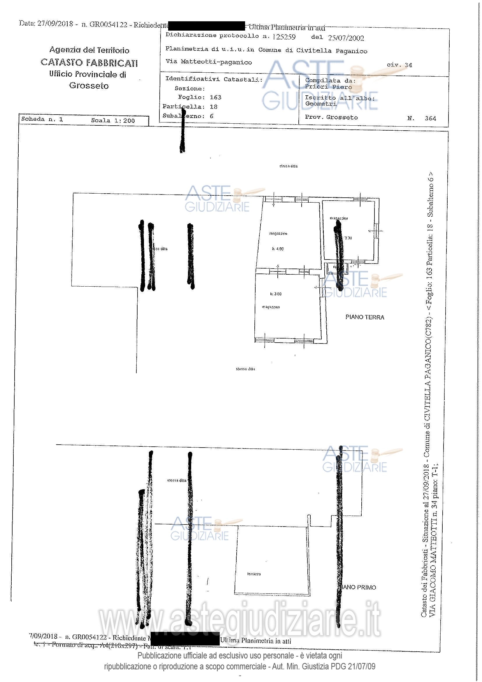
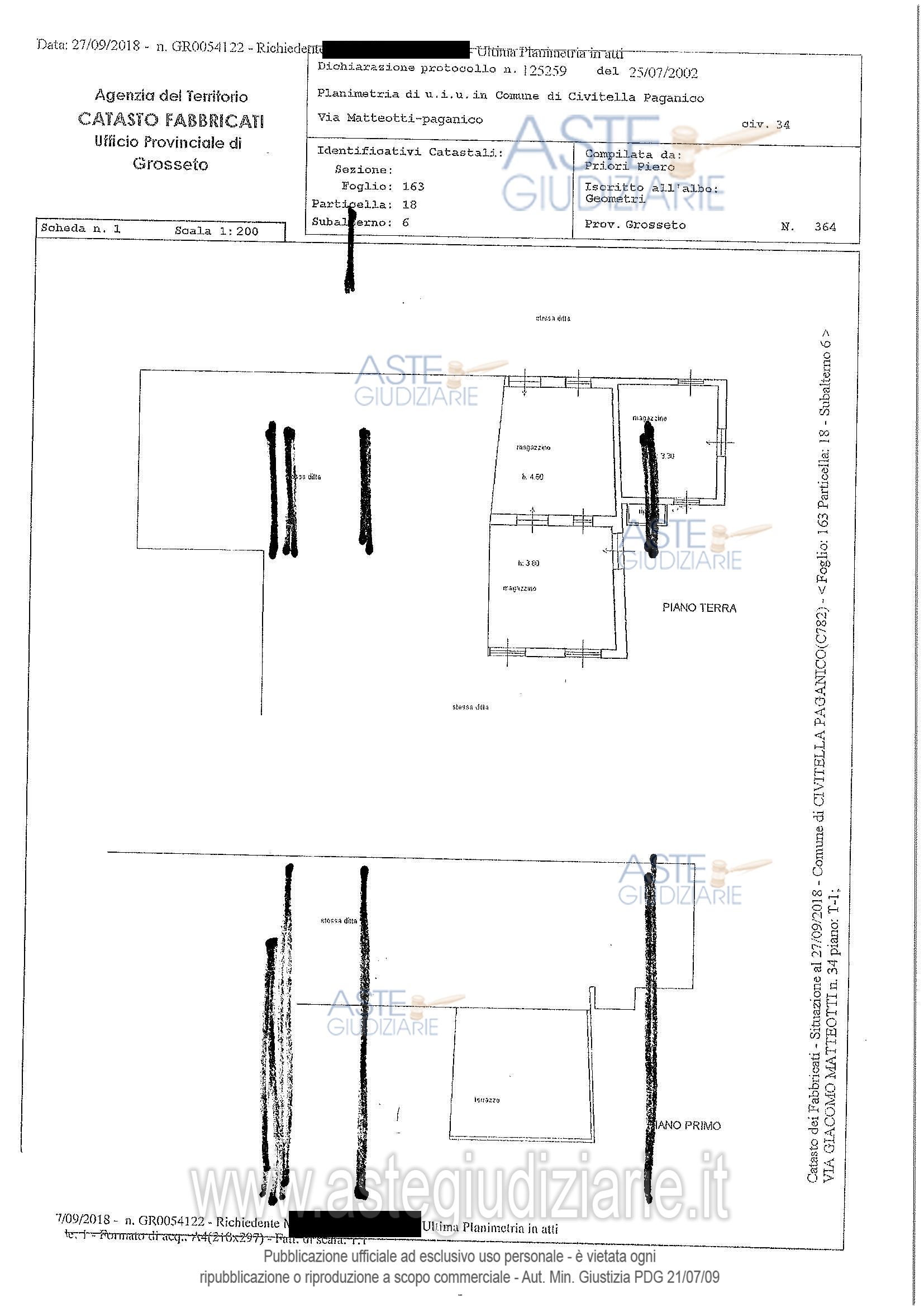
Vendita all'asta Senza incanto, con gara telematica sincrona mista - LOTTO UNICO: Piena proprietà di un compendio immobiliare formato da terreni non agricoli e fabbricati ex agricoli ubicati nel comune di Civitella Paganico in via Giacomo Matteotti, individuati al Catasto terreni del predetto comune nel foglio di mappa 163, particella 96 e 94; al Catasto fabbricati del predetto comune nel foglio di mappa 163, particella 18 sub.6, sub.11, sub.9, sub.4, sub.12. Prezzo base € 285.722,70 (offerta minima € 214.292,01). Data vendita 21/04/2026 ore 10:00. Professionista delegato alla vendita Avv. Vanessa Moscatelli - Email "avv.vanessamoscatelli@gmail.com"; Tel. 056426235. Custode Giudiziario Avv. Vanessa Moscatelli - Email "avv.vanessamoscatelli@gmail.com"; Tel. 056426235. Rif. Tribunale di Grosseto - Esecuzione immobiliare post legge 80 n. 174/2017

Superficie mq
Vani
Bagni
Piano 0

Tipologia di vendita Giudiziaria
Modalità di vendita Sincrona mista
Termine presentazione offerte 01/01/1900 ore 00:00
Data e ora inizio gara 21/04/2026 ore 10:00
Codice ID astegiudiziarie.it 4238873
0
€ 285.723

Ti interessa questa vendita?

north_east

Clicca qui per essere indirizzato alla scheda sul sito di provenienza

Bene di astegiudiziarie.it