highlight_off
Riferimento annuncio 316860 info

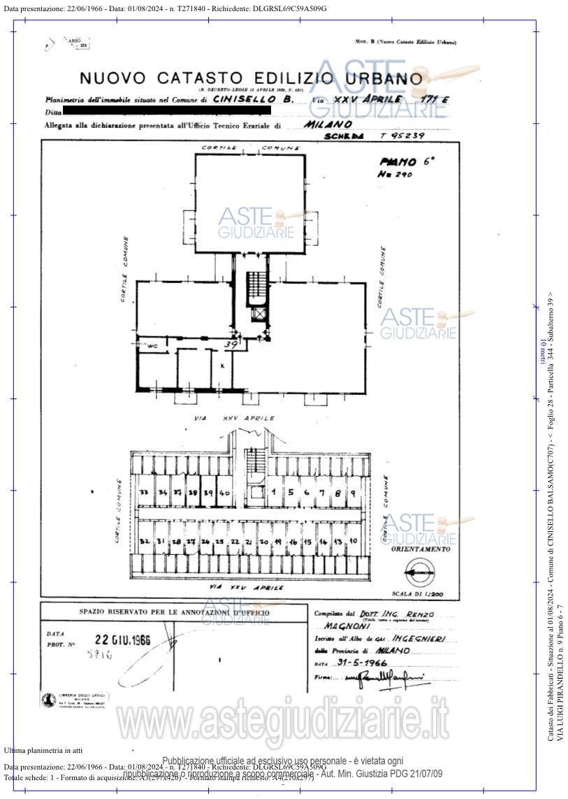
Appartamento Via Luigi Pirandello, 9,, 20092 Cinisello Balsamo (MI)

4,00
66,78
0
€ 124.000
Vendita all'asta Senza incanto, con gara telematica sincrona - LOTTO UNICO: Appartamento piano 6 con ascensore mq 66,78 due locali con servizi oltre solaio al sottotetto piana proprieta'. Prezzo base € 124.000,00 (offerta minima € 93.000,00). Data vendita 19/11/2025 ore 11:00. Professionista delegato alla vendita Avv. Sabina Villa - Email "villa@rattinivilla.it"; Tel. 3381498680. Custode Giudiziario Avv. Sabina Villa - Email "villa@rattinivilla.it"; Tel. 3381498680. Rif. Tribunale di Monza - Espropriazione immobiliare (cartabia) n. 212/2024

Superficie 66,78 mq
Vani 4,00
Bagni
Piano 0

Tipologia di vendita Giudiziaria
Modalità di vendita Sincrona telematica
Termine presentazione offerte 17/11/2025 ore 13:00
Data e ora inizio gara 19/11/2025 ore 11:00
Codice ID astegiudiziarie.it 4337513
4,00
66,78
0
€ 124.000

Ti interessa questa vendita?

north_east

Clicca qui per essere indirizzato alla scheda sul sito di provenienza

Bene di astegiudiziarie.it