highlight_off
Riferimento annuncio 316528 info

Appartamento Vicolo Riggio, 92012 Cianciana AG, Italia, 92012 Cianciana (AG)

5,00
200,00
2
0
€ 78.600
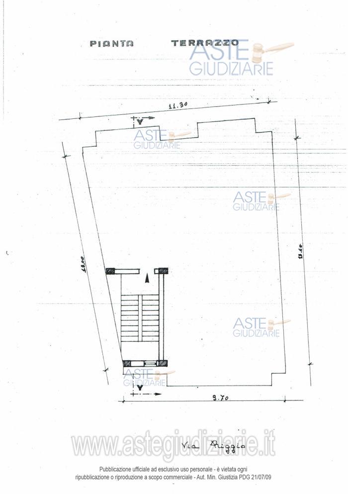
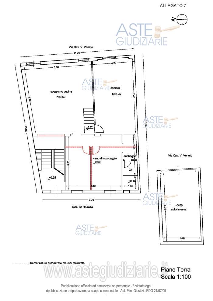
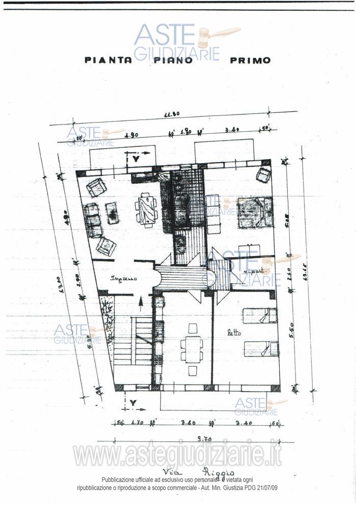
Vendita all'asta Senza incanto, con gara telematica asincrona - LOTTO UNICO: Piena proprietà (1/1) di fabbricato composto da un laboratorio artigianale al piano terra e da un appartamento di tipo economico al piano primo. Prezzo base € 78.600,00 (offerta minima € 58.950,00). Data inizio operazioni di vendita: 18/12/2025 ore 17:00. Giudice Veronica Messana. Professionista delegato alla vendita Avv. Rosalia Scirica - Email "lia.scirica@gmail.com"; Cell. 3293019430; Tel. 09251955884. Custode Giudiziario Avv. Rosalia Scirica - Email "lia.scirica@gmail.com"; Cell. 3293019430; Tel. 09251955884. Rif. Tribunale di Sciacca - Esecuzione immobiliare post legge 80 n. 40/2021

Superficie 200,00 mq
Vani 5,00
Bagni 2
Piano 0

Tipologia di vendita Giudiziaria
Modalità di vendita Asincrona telematica
Termine presentazione offerte 01/01/1900 ore 00:00
Data e ora inizio gara 18/12/2025 ore 17:00
Codice ID astegiudiziarie.it 4335658
5,00
200,00
2
0
€ 78.600

Ti interessa questa vendita?

north_east

Clicca qui per essere indirizzato alla scheda sul sito di provenienza

Bene di astegiudiziarie.it