highlight_off
Riferimento annuncio 316934 info

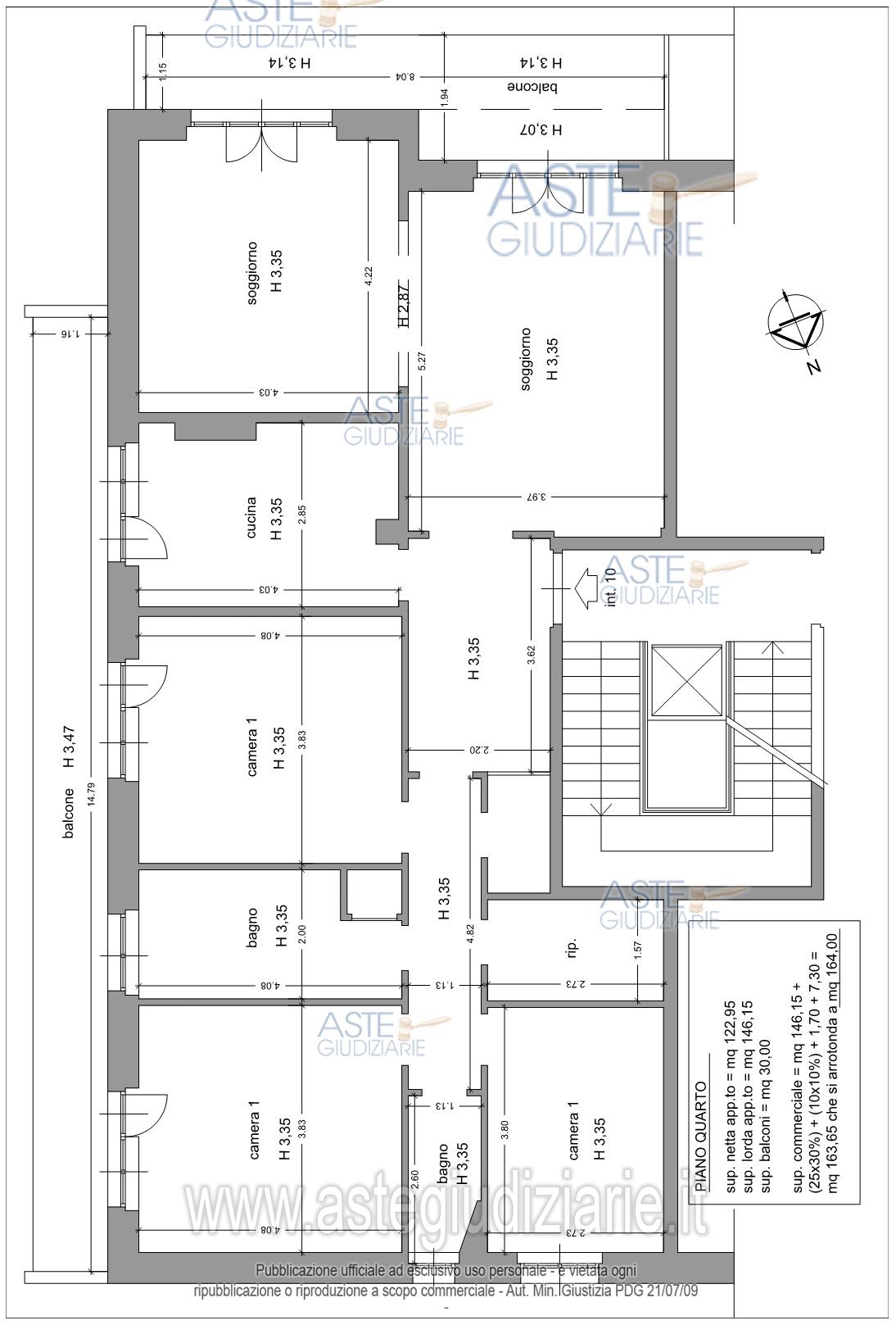
Appartamento Corso Buenos Aires, 6, 16043 Chiavari GE, Italia, 16043 Chiavari (GE)

7,50
166,00
4
€ 540.200
Vendita all'asta Senza incanto, con gara telematica sincrona mista - LOTTO 2: Piena ed esclusiva proprietà di immobile abitativo, in fabbricato condominiale, con posto auto in Chiavari (GE). Prezzo base € 540.200,00 (offerta minima € 405.150,00). Data vendita 18/12/2025 ore 16:30. Custode Giudiziario Dott. Uriele Valdinoci - Email "urielevaldinoci@studionucci.com"; Tel. 010870687. Curatore Dott. Uriele Valdinoci - Email "urielevaldinoci@studionucci.com"; Tel. 010870687. Rif. Tribunale di Genova - Fallimentare (nuovo rito) n. 75/2022

Superficie 166,00 mq
Vani 7,50
Bagni
Piano 4

Tipologia di vendita Giudiziaria
Modalità di vendita Sincrona mista
Termine presentazione offerte 16/12/2025 ore 12:00
Data e ora inizio gara 18/12/2025 ore 16:30
Codice ID astegiudiziarie.it 4337541
7,50
166,00
4
€ 540.200

Ti interessa questa vendita?

north_east

Clicca qui per essere indirizzato alla scheda sul sito di provenienza

Bene di astegiudiziarie.it