highlight_off
Riferimento annuncio 77563 info

Appartamento Via PALMIRO TOGLIATTI 39, 97012 Chiaramonte Gulfi (RG)

6,00
240,50
0
€ 22.560
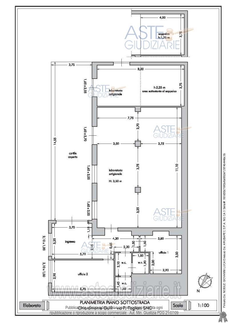
Vendita all'asta Senza incanto, con gara telematica sincrona mista - LOTTO 2: Appartamento per civile abitazione (150 mq) con annesso garage (49 mq) e veranda coperta (34 mq) sito in Chiaramonte Gulfi, via Palmiro Togliatti NCEU Foglio 98 Particella 215 Sub 1 Categoria C/6 Rendita € 140,89 classe 1; Sub 2 Categoria A/2 Rendita € 548,74 classe energetica “E”. Prezzo base € 22.560,00 (offerta minima € 16.920,00). Data vendita 27/03/2026 ore 15:30. Giudice Francesco Rio. Professionista delegato alla vendita Avv. Francesco Pannuzzo. Custode Giudiziario Avv. Francesco Pannuzzo - Email "studiolegalepannuzzo@hotmail.it"; Tel. 0932229003. Rif. Tribunale di Ragusa - Esecuzione immobiliare post legge 80 n. 426/2018

Superficie 240,50 mq
Vani 6,00
Bagni
Piano 0

Tipologia di vendita Giudiziaria
Modalità di vendita Sincrona mista
Termine presentazione offerte 01/01/1900 ore 00:00
Data e ora inizio gara 27/03/2026 ore 15:30
Codice ID astegiudiziarie.it 4197733
6,00
240,50
0
€ 22.560

Ti interessa questa vendita?

north_east

Clicca qui per essere indirizzato alla scheda sul sito di provenienza

Bene di astegiudiziarie.it