Riferimento annuncio 314404
        
    
    Appartamento Contrada Patrìa, 97012 Chiaramonte Gulfi RG, Italia, 97012 Chiaramonte Gulfi (RG)
                
                30,00
            
            
                
                0
            
        
€ 20.000    
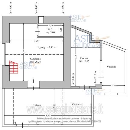
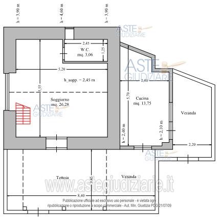
                Vendita all'asta Senza incanto, con gara telematica sincrona mista - LOTTO UNICO:  Piena proprietà di unità immobiliare adibita a civile abitazione costituita da due corpi di fabbrica insistenti all’interno di un lotto di terreno della superficie catastale di mq. 810 sita in Chiaramonte Gulfi (RG) in C.da Patria snc della superficie catastale di circa 30 mq. censita al N.C.E.U. al foglio 29 particella 633 sub 1, cat. A/3, classe 1, vani 3, RC € 154,94, con una corte esterna esclusiva di circa 765 mq. Prezzo base € 20.000,00 (offerta minima € 15.000,00). Data vendita 07/11/2025 ore 16:00. Giudice Carlo Di Cataldo. Professionista delegato alla vendita Dott. Emanuele Muriana - Email "muriana1946@tiscali.it"; Tel. 0932906899. Custode Giudiziario Dott. Emanuele Muriana - Email "muriana1946@tiscali.it"; Tel. 0932906899.  Rif. Tribunale di Ragusa - Espropriazione immobiliare (cartabia) n. 195/2024
            
   
| Superficie | 30,00 mq | 
|---|---|
| Vani | |
| Bagni | |
| Piano | 0 | 
| Tipologia di vendita | Giudiziaria | 
|---|---|
| Modalità di vendita | Sincrona mista | 
| Termine presentazione offerte | 06/11/2025 ore 13:00 | 
| Data e ora inizio gara | 07/11/2025 ore 16:00 | 
 
                         
                         
                         
                         
                         
                         
                         
                         
                         
                        