highlight_off
Riferimento annuncio 330523 info

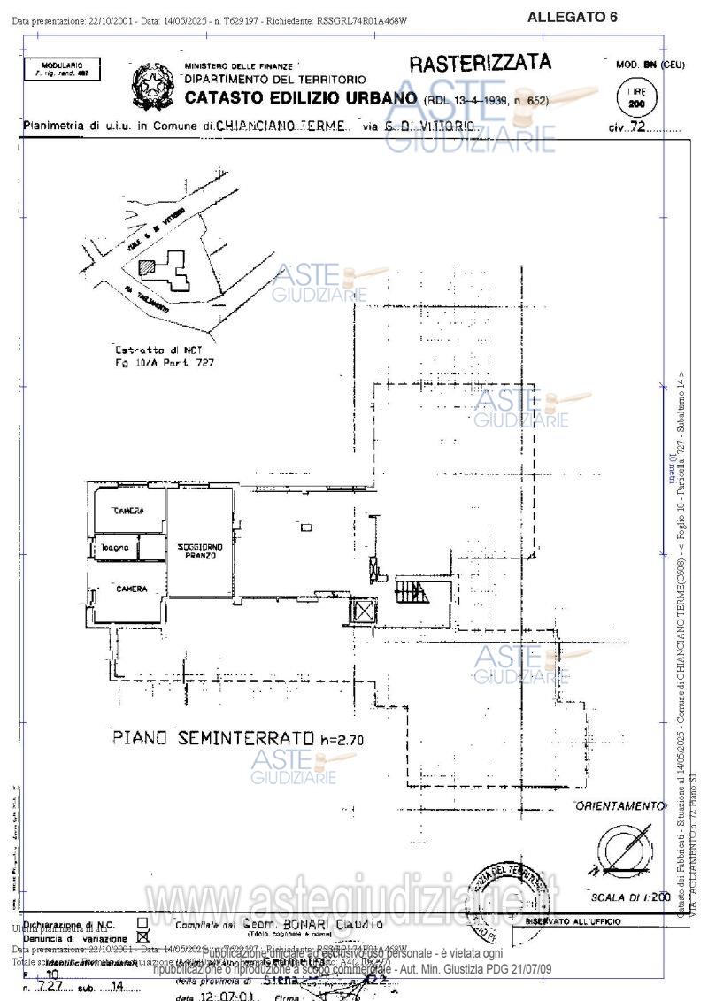
Appartamento Via Tagliamento, n. 72, 53042 Chianciano Terme (SI)

4,00
6280,00
0
€ 33.000
Vendita all'asta Senza incanto, con gara telematica asincrona - LOTTO UNICO: Diritto di piena proprietà su unità immobiliari a destinazione abitativa ed accessoria poste a Chianciano Terme (SI) in zona urbana, Via Tagliamento n°72 – Int. 14.Trattasi di un appartamento, un magazzino (soffitta) ed un posto auto esterno scoperto nello specifico: appartamento posto a piano terra di mq netti 42,75, formato da un soggiorno/pranzo con angolo cottura, un disimpegno, due camere e un bagno; magazzino posto al piano terzo (soffitta); posto auto esterno scoperto. Prezzo base € 33.000,00 (offerta minima € 25.000,00). Data inizio operazioni di vendita: 09/06/2026 ore 10:00. Giudice: Marta Dell'unto. Professionista delegato alla vendita: Avv. Gloria Bassi - Email "gloria@studiobruni.org"; Tel. 055/0127087; Cell. 320/4103458. Custode Giudiziario: Avv. Istituto Vendite Giudiziarie Tribunale Di Siena - Email "visite@giustiziaivg.it"; Tel. 0577/318111; Cell. 339/7337017. Rif. Tribunale di Siena - Espropriazione immobiliare (cartabia) n. 193/2024

Superficie 6280,00 mq
Vani 4,00
Bagni
Piano 0

Tipologia di vendita Giudiziaria
Modalità di vendita Asincrona telematica
Termine presentazione offerte 01/01/1900 ore 00:00
Data e ora inizio gara 09/06/2026 ore 10:00
Codice ID astegiudiziarie.it 4348199
4,00
6280,00
0
€ 33.000

Ti interessa questa vendita?

north_east

Clicca qui per essere indirizzato alla scheda sul sito di provenienza

Bene di astegiudiziarie.it