highlight_off
Riferimento annuncio 311371 info

Appartamento Strada di Mombasiglio, 39, 12073 Ceva CN, Italia, 12073 Ceva (CN)

0
€ 30.000
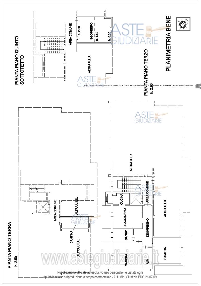
Vendita all'asta Senza incanto, con gara telematica asincrona - LOTTO UNICO: Facente parte di fabbricato urbano condominiale, alloggio distinto dal numero di interno 7, ubicato in piano terzo, composto da cucinino, tinello, bagno, due camere, ripostiglio, disimpegno, terrazzi, con annessi cantina in piano terra e soffitta in piano sottotetto. Prezzo base € 30.000,00 (offerta minima € 22.500,00). Data inizio operazioni di vendita: 07/11/2025 ore 15:30. Professionista delegato alla vendita Avv. Gabriele Carazza - Email "gabrielecarazza@yahoo.it"; Cell. 3402934134; Tel. 0174552181. Custode Giudiziario Ifir Piemonte Srl Ivg Torino - Email "richiestevisite.cuneo@ivgpiemonte.it"; Cell. 01711873923; Tel. 0114731714. Rif. Tribunale di Cuneo - Espropriazione immobiliare (cartabia) n. 165/2024

Superficie mq
Vani
Bagni
Piano 0

Tipologia di vendita Giudiziaria
Modalità di vendita Asincrona telematica
Termine presentazione offerte 06/11/2025 ore 12:00
Data e ora inizio gara 07/11/2025 ore 15:30
Codice ID astegiudiziarie.it 4332572
0
€ 30.000

Ti interessa questa vendita?

north_east

Clicca qui per essere indirizzato alla scheda sul sito di provenienza

Bene di astegiudiziarie.it