highlight_off
Riferimento annuncio 299190 info

Appartamento Via Madonna dell'Olio, Cesa CE, Italia, 81030 Cesa (CE)

7,50
192,00
0
€ 138.000
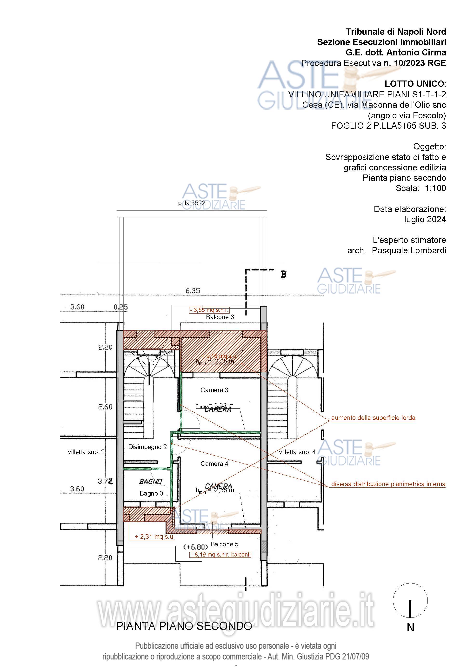
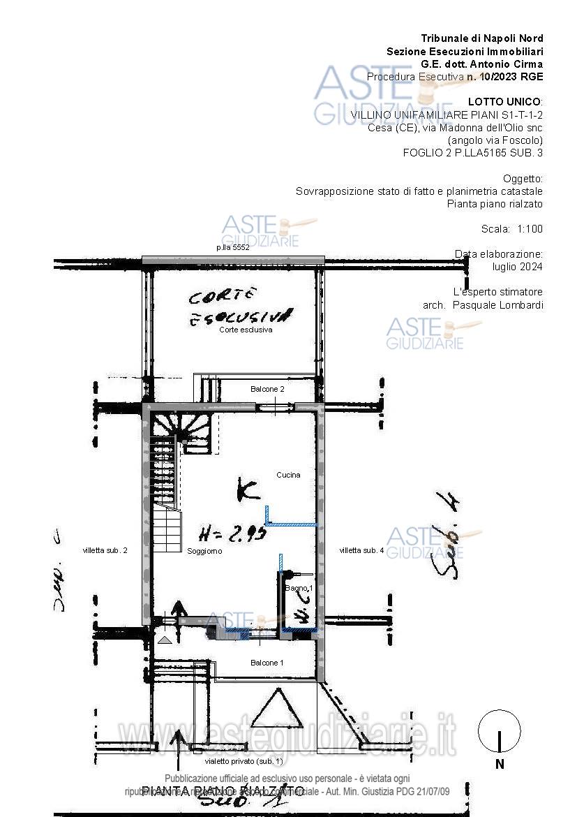
Vendita all'asta Senza incanto, con gara telematica asincrona - LOTTO UNICO: LOTTO UNICO: PIENA ED INTERA PROPRIETÀ DI VILLINO UNIFAMILIARE, FACENTE PARTE DI UN PICCOLO COMPLESSO DI VILLINI A SCHIERA SITO NEL COMUNE DI CESA (CE) ALLA VIA MADONNA DELL’OLIO SNC AD ANGOLO CON VIA UGO FOSCOLO. SI ARTICOLA IN UN LIVELLO SEMINTERRATO E TRE LIVELLI FUORI TERRA. Prezzo base € 138.000,00 (offerta minima € 103.500,00). Data inizio operazioni di vendita: 24/02/2026 ore 16:30. Professionista delegato alla vendita Dott. Giuseppe Savona - Email "info@studiosavona.it". Custode Giudiziario Dott. Giuseppe Savona - Email "info@studiosavona.it". Rif. Tribunale di Napoli Nord - Esecuzione immobiliare post legge 80 n. 10/2023

Superficie 192,00 mq
Vani 7,50
Bagni
Piano 0

Tipologia di vendita Giudiziaria
Modalità di vendita Asincrona telematica
Termine presentazione offerte 23/02/2026 ore 23:59
Data e ora inizio gara 24/02/2026 ore 16:30
Codice ID astegiudiziarie.it 4323062
7,50
192,00
0
€ 138.000

Ti interessa questa vendita?

north_east

Clicca qui per essere indirizzato alla scheda sul sito di provenienza

Bene di astegiudiziarie.it