highlight_off
Riferimento annuncio 331952 info

Appartamento via Tavolese, 227, 50052 Certaldo (FI)

0
€ 102.000
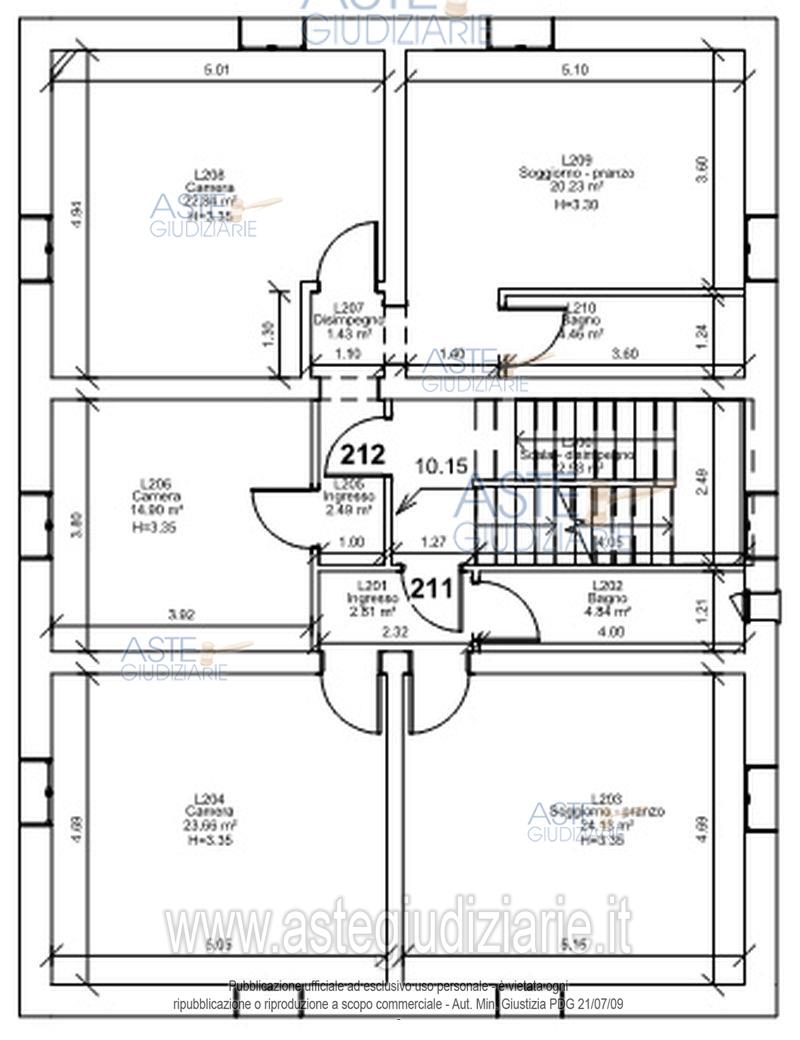
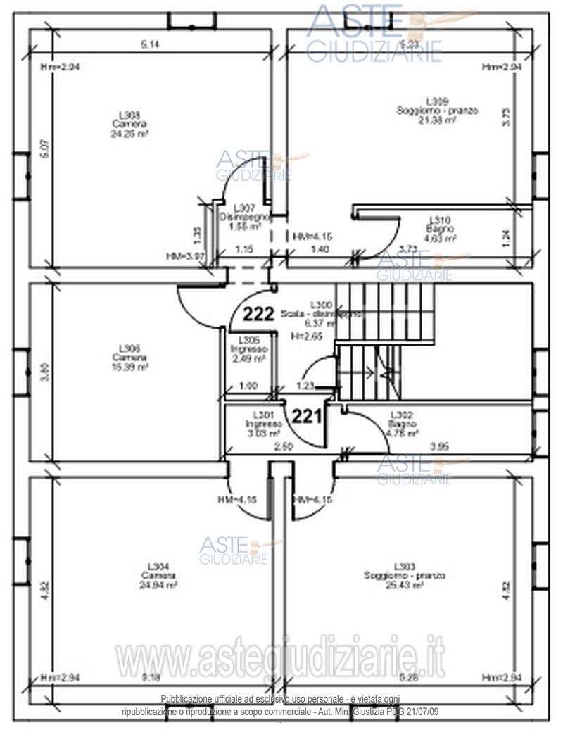
Vendita all'asta Senza incanto, con gara telematica sincrona - LOTTO 8: Piena proprietà di un appartamento ad uso civile abitazione posto al piano 2° composto da ingresso, soggiorno-pranzo con angolo cottura, camera e bagno, oltre porzione di terreno quale resede a comune ad altre unità. Prezzo base € 102.000,00 (offerta minima € 76.500,00). Data vendita 17/06/2026 ore 16:00. Professionista delegato alla vendita: Avv. Ilaria Biagiotti - Email "avv.ilariabiagiotti@gmail.com"; Tel. 055/473590. Custode Giudiziario: Istituto Vendite Giudiziarie Di Firenze - Email "prenota.fi@isveg.it"; Tel. 055/2340830. Rif. Tribunale di Firenze - Esecuzione immobiliare post legge 80 n. 164/2017

Superficie mq
Vani
Bagni
Piano 0

Tipologia di vendita Giudiziaria
Modalità di vendita Sincrona telematica
Termine presentazione offerte 01/01/1900 ore 00:00
Data e ora inizio gara 17/06/2026 ore 16:00
Codice ID astegiudiziarie.it 4349039
0
€ 102.000

Ti interessa questa vendita?

north_east

Clicca qui per essere indirizzato alla scheda sul sito di provenienza

Bene di astegiudiziarie.it