highlight_off
Riferimento annuncio 331947 info

Appartamento via Tavolese, 227, 50052 Certaldo (FI)

0
€ 109.650
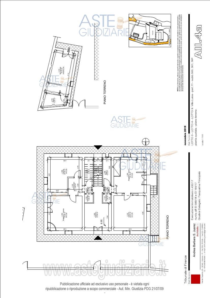
Vendita all'asta Senza incanto, con gara telematica sincrona - LOTTO 3: Piena proprietà di un appartamento ad uso civile abitazione piano T e composta da ingresso, disimpegno, soggiorno-pranzo cottura, camera, bagno e ripostiglio, oltre porzione di terreno quale resede a comune ad altre unità. Prezzo base € 109.650,00 (offerta minima € 82.237,50). Data vendita 17/06/2026 ore 11:00. Professionista delegato alla vendita: Avv. Ilaria Biagiotti - Email "avv.ilariabiagiotti@gmail.com"; Tel. 055/473590. Custode Giudiziario: Istituto Vendite Giudiziarie Di Firenze - Email "prenota.fi@isveg.it"; Tel. 055/2340830. Rif. Tribunale di Firenze - Esecuzione immobiliare post legge 80 n. 164/2017

Superficie mq
Vani
Bagni
Piano 0

Tipologia di vendita Giudiziaria
Modalità di vendita Sincrona telematica
Termine presentazione offerte 01/01/1900 ore 00:00
Data e ora inizio gara 17/06/2026 ore 11:00
Codice ID astegiudiziarie.it 4349034
0
€ 109.650

Ti interessa questa vendita?

north_east

Clicca qui per essere indirizzato alla scheda sul sito di provenienza

Bene di astegiudiziarie.it