highlight_off
Riferimento annuncio 110053 info

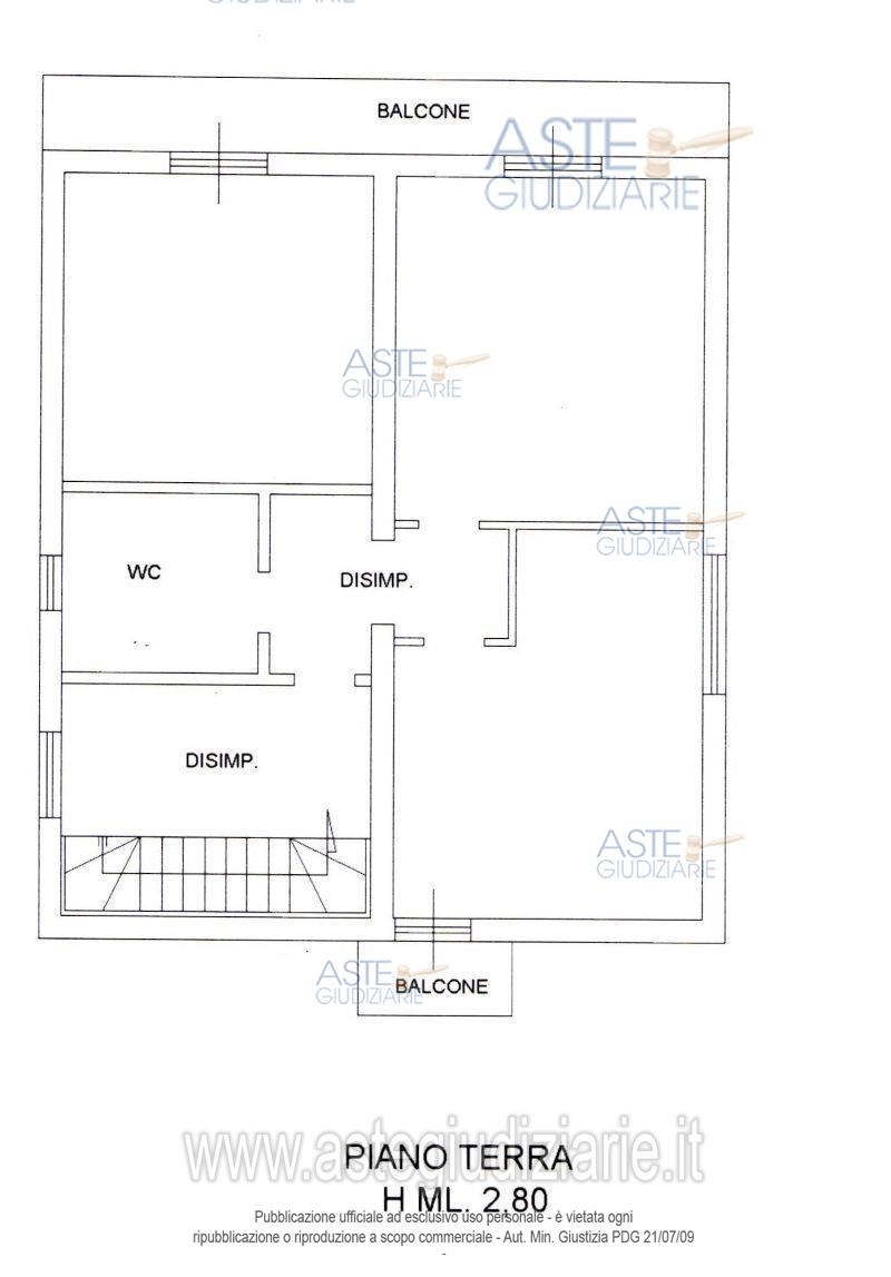
Appartamento VIA PASSO DEL CARDINALE 80, 03023 Ceccano (FR)

7,00
151,82
0
€ 28.100
Vendita all'asta Senza incanto, con gara telematica asincrona - LOTTO 1: piena proprietà di fabbricato civile in Via Passo del Cardinale n. 80 Ceccano al NCEU f 9 part 475 sub 1 prezzo base Euro 28.100,00-offerta minima Euro 21.075,00-rilanci Euro 5.000,00-GE FERDINANDI cauzione almeno 10% del prezzo offerto. Prezzo base € 28.100,00 (offerta minima € 21.075,00). Data inizio operazioni di vendita: 04/06/2026 ore 15:30. Giudice: Francesco Ferdinandi. Professionista delegato alla vendita: Avv. Fernando Casini - Email "fernando.casini@yahoo.it"; Tel. 0775/872331; Cell. 338/4060049. Custode Giudiziario: Avv. Fernando Casini - Email "fernando.casini@yahoo.it"; Tel. 0775/872331; Cell. 338/4060049. Rif. Tribunale di Frosinone - Esecuzione immobiliare post legge 80 n. 230/2014

Superficie 151,82 mq
Vani 7,00
Bagni
Piano 0

Tipologia di vendita Giudiziaria
Modalità di vendita Asincrona telematica
Termine presentazione offerte 03/06/2026 ore 12:00
Data e ora inizio gara 04/06/2026 ore 15:30
Codice ID astegiudiziarie.it 326183
7,00
151,82
0
€ 28.100

Ti interessa questa vendita?

north_east

Clicca qui per essere indirizzato alla scheda sul sito di provenienza

Bene di astegiudiziarie.it