highlight_off
Riferimento annuncio 317346 info

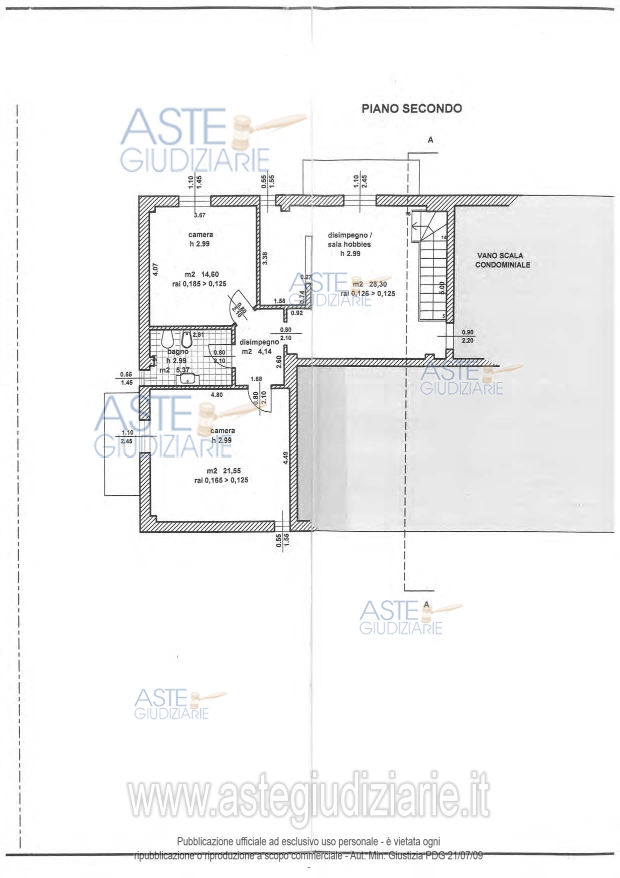
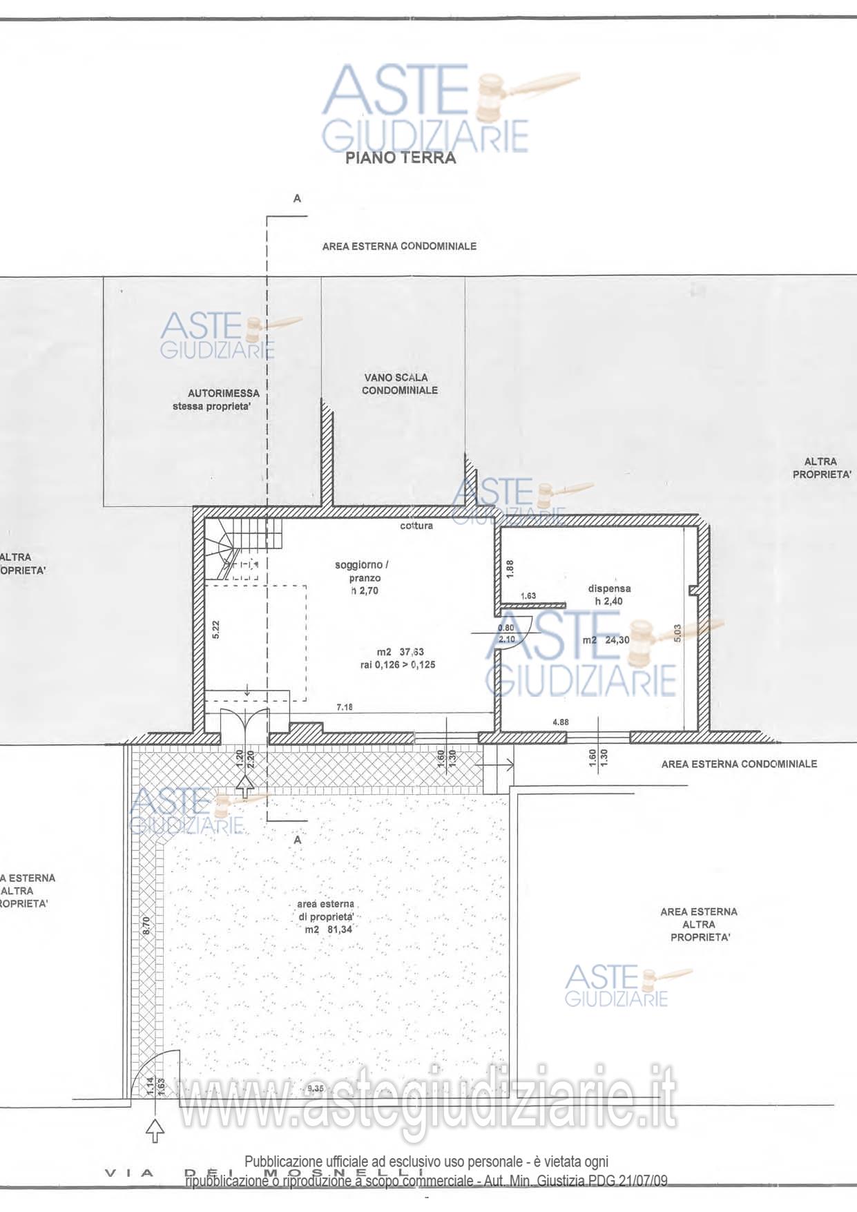
Appartamento Bornato, VIA DEI MOSNELLI n. 3, 25046 Cazzago San Martino (BS)

0
€ 240.000
Vendita all'asta Senza incanto, con gara telematica asincrona - LOTTO UNICO: Piena proprietà di appartamento con la relativa autorimessa. Prezzo base € 240.000,00 (offerta minima € 180.000,00). Data inizio operazioni di vendita: 10/12/2025 ore 12:30. Professionista delegato alla vendita Not. Luigi Raffaele D Agostino - Email "immobiliare@notaiodagostino.it"; Tel. 030222849. Custode Giudiziario Not. Luigi Raffaele D Agostino - Email "visiteimmobili@anpebrescia.it". Rif. Tribunale di Brescia - Esecuzione immobiliare post legge 80 n. 520/2022

Superficie mq
Vani
Bagni
Piano 0

Tipologia di vendita Giudiziaria
Modalità di vendita Asincrona telematica
Termine presentazione offerte 01/01/1900 ore 00:00
Data e ora inizio gara 10/12/2025 ore 12:30
Codice ID astegiudiziarie.it 4337893
0
€ 240.000

Ti interessa questa vendita?

north_east

Clicca qui per essere indirizzato alla scheda sul sito di provenienza

Bene di astegiudiziarie.it