highlight_off
Riferimento annuncio 325728 info

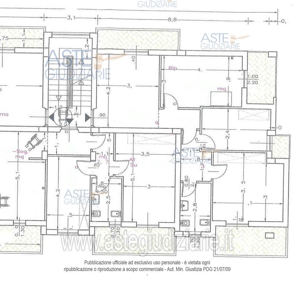
Appartamento Via Friuli, 26, 88100 Catanzaro (CZ)

85,06
0
€ 66.347
Vendita all'asta Senza incanto, con gara telematica asincrona - LOTTO UNICO: Proprietà 1/1 di fabbricato (edificio B) al piano SI-I, composto dall’appartamento ad uso abitazione al I piano e dal deposito al piano seminterrato. Prezzo base € 66.346,80 (offerta minima € 49.760,10). Data inizio operazioni di vendita: 14/04/2026 ore 15:00. Giudice Dott. Chiara Di Credico. Professionista delegato alla vendita Avv. Luigi Pallone - Email "studiopallone@gmail.com"; Tel. 3386304828. Custode Giudiziario Avv. Luigi Pallone - Email "studiopallone@gmail.com"; Tel. 3386304828. Rif. Tribunale di Catanzaro - Esecuzione immobiliare post legge 80 n. 83/2019

Superficie 85,06 mq
Vani
Bagni
Piano 0

Tipologia di vendita Giudiziaria
Modalità di vendita Asincrona telematica
Termine presentazione offerte 13/04/2026 ore 12:00
Data e ora inizio gara 14/04/2026 ore 15:00
Codice ID astegiudiziarie.it 4344392
85,06
0
€ 66.347

Ti interessa questa vendita?

north_east

Clicca qui per essere indirizzato alla scheda sul sito di provenienza

Bene di astegiudiziarie.it