highlight_off
Riferimento annuncio 315780 info

Appartamento Via Lenza, 125, 88100 Catanzaro (CZ)

5,00
79,00
0
€ 41.500
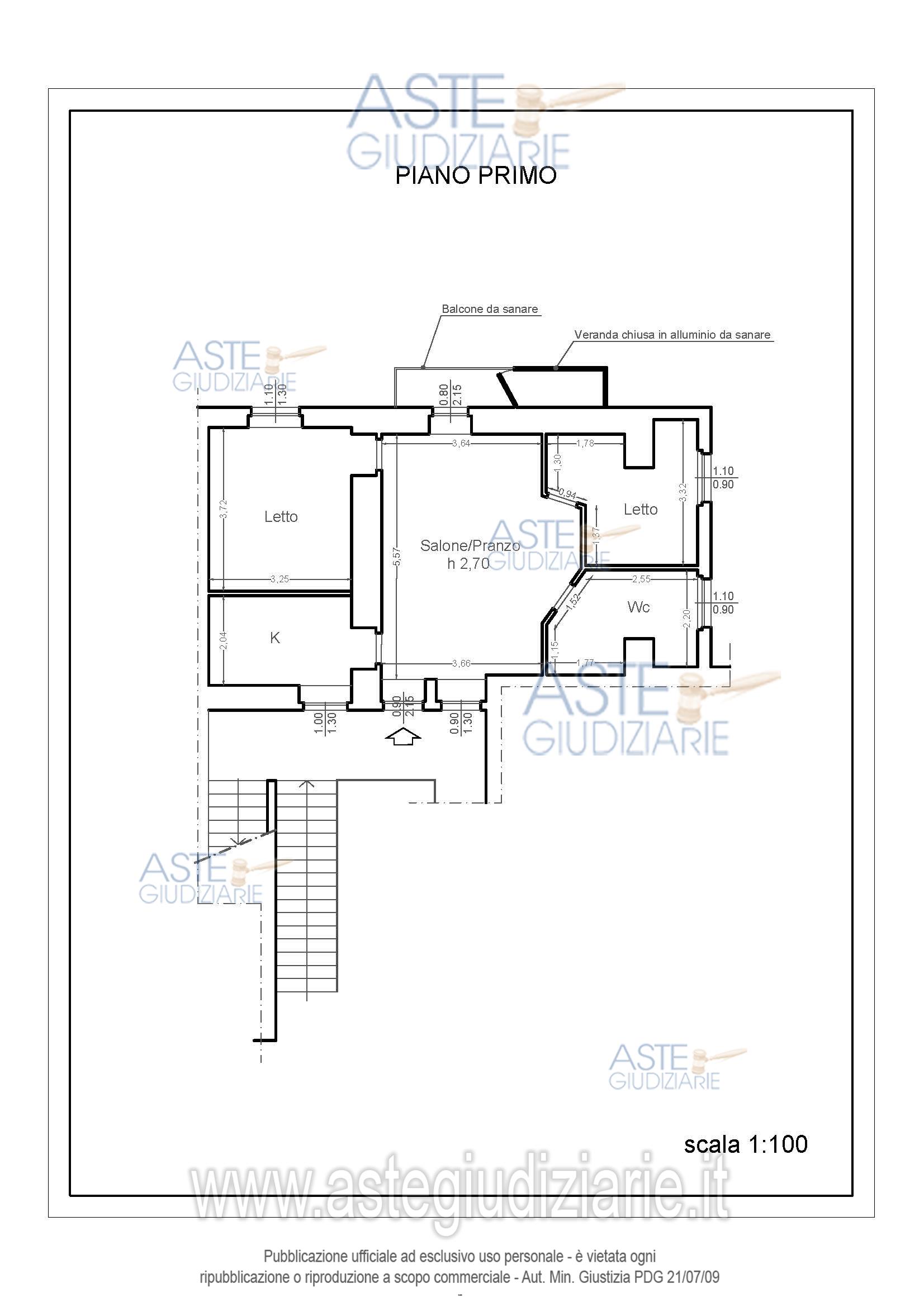
Vendita all'asta Senza incanto, con gara telematica asincrona - LOTTO 0: piena proprietà 1000/1000 di appartamento destinato a civile abitazione posto al piano primo di un fabbricato a tre piani fuori terra, superficie lorda pari a mq. 79,00, zona censuaria 6, categoria A3, Classe 1, consistenza 5 vani, rendita € 227,24. Prezzo base € 41.500,00 (offerta minima € 31.200,00). Data inizio operazioni di vendita: 03/02/2026 ore 15:00. Giudice Dott. Francesca Rinaldi. Professionista delegato alla vendita Dott. Antonio Argirò - Email "studioargiroantonio@gmail.com"; Tel. 0961741571. Custode Giudiziario Dott. Antonio Argirò - Email "studioargiroantonio@gmail.com"; Tel. 0961741571. Rif. Tribunale di Catanzaro - Espropriazione immobiliare (cartabia) n. 124/2024

Superficie 79,00 mq
Vani 5,00
Bagni
Piano 0

Tipologia di vendita Giudiziaria
Modalità di vendita Asincrona telematica
Termine presentazione offerte 01/01/1900 ore 00:00
Data e ora inizio gara 03/02/2026 ore 15:00
Codice ID astegiudiziarie.it 4336477
5,00
79,00
0
€ 41.500

Ti interessa questa vendita?

north_east

Clicca qui per essere indirizzato alla scheda sul sito di provenienza

Bene di astegiudiziarie.it