highlight_off
Riferimento annuncio 309222 info

Appartamento Via Posta Vecchia, 5, 88100 Catanzaro (CZ)

3,00
60,00
0
€ 39.661
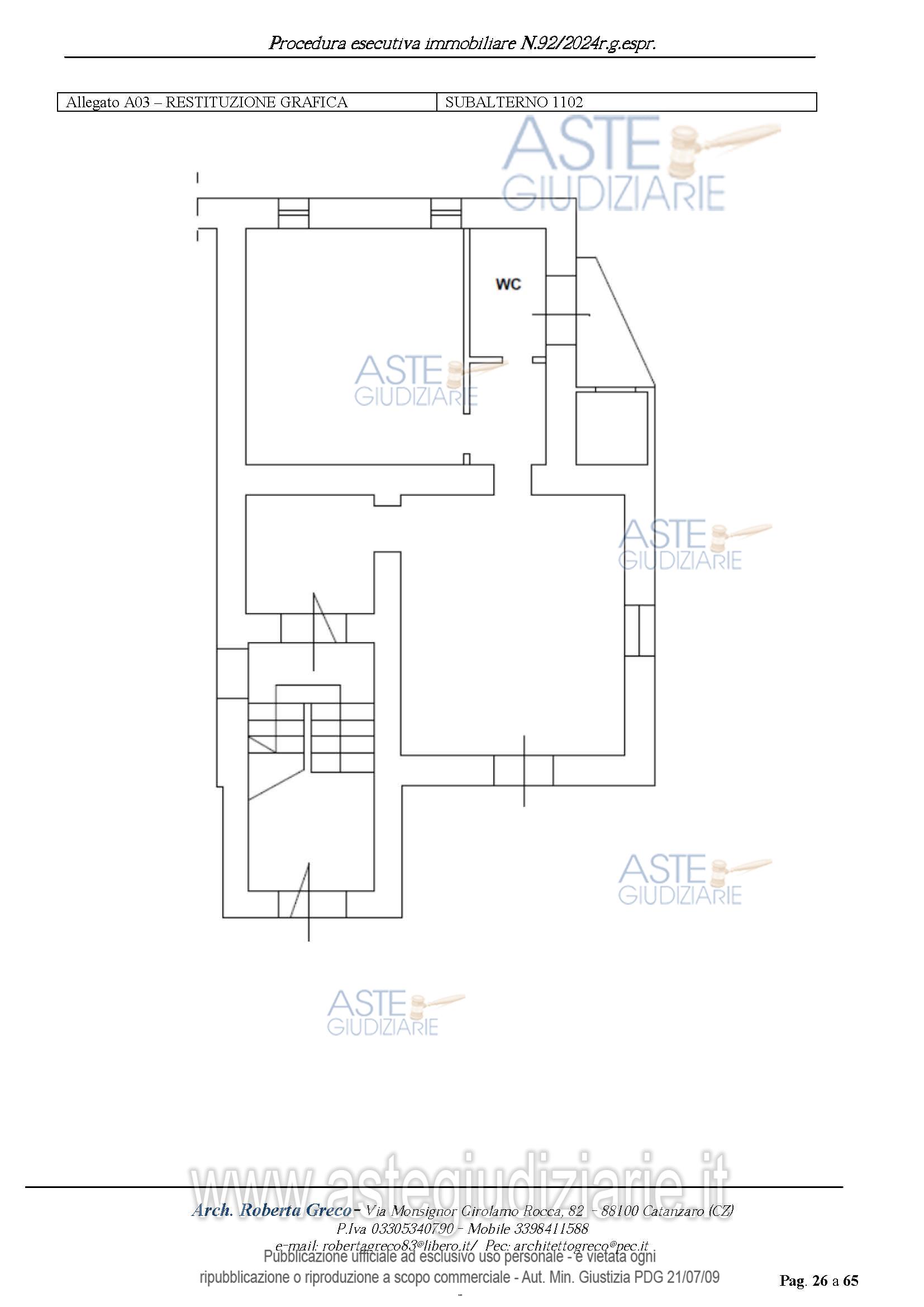
Vendita all'asta Senza incanto, con gara telematica asincrona - LOTTO 1: piena proprietà per la quota di 1000/1000 di locale, consistenza di circa mq 77, piano terra; immobile classe1, consistenza 3 vani e proprietà di 1/4 di lastrico solare indiviso, consistenza di circa mq 34,25, categoria F/5, posto al piano secondo del piccolo complesso condominiale, non pavimentato. Prezzo base € 39.660,97 (offerta minima € 29.745,63). Data inizio operazioni di vendita: 22/12/2025 ore 15:00. Giudice Dott. Francesca Rinaldi. Professionista delegato alla vendita Avv. Francesco Folino - Email "francescofolino@hotmail.it"; Tel. 3476266225. Custode Giudiziario Avv. Francesco Folino - Email "francescofolino@hotmail.it"; Tel. 3476266225. Rif. Tribunale di Catanzaro - Espropriazione immobiliare (cartabia) n. 92/2024

Superficie 60,00 mq
Vani 3,00
Bagni
Piano 0

Tipologia di vendita Giudiziaria
Modalità di vendita Asincrona telematica
Termine presentazione offerte 01/01/1900 ore 00:00
Data e ora inizio gara 22/12/2025 ore 15:00
Codice ID astegiudiziarie.it 4330982
3,00
60,00
0
€ 39.661

Ti interessa questa vendita?

north_east

Clicca qui per essere indirizzato alla scheda sul sito di provenienza

Bene di astegiudiziarie.it