highlight_off
Riferimento annuncio 306646 info

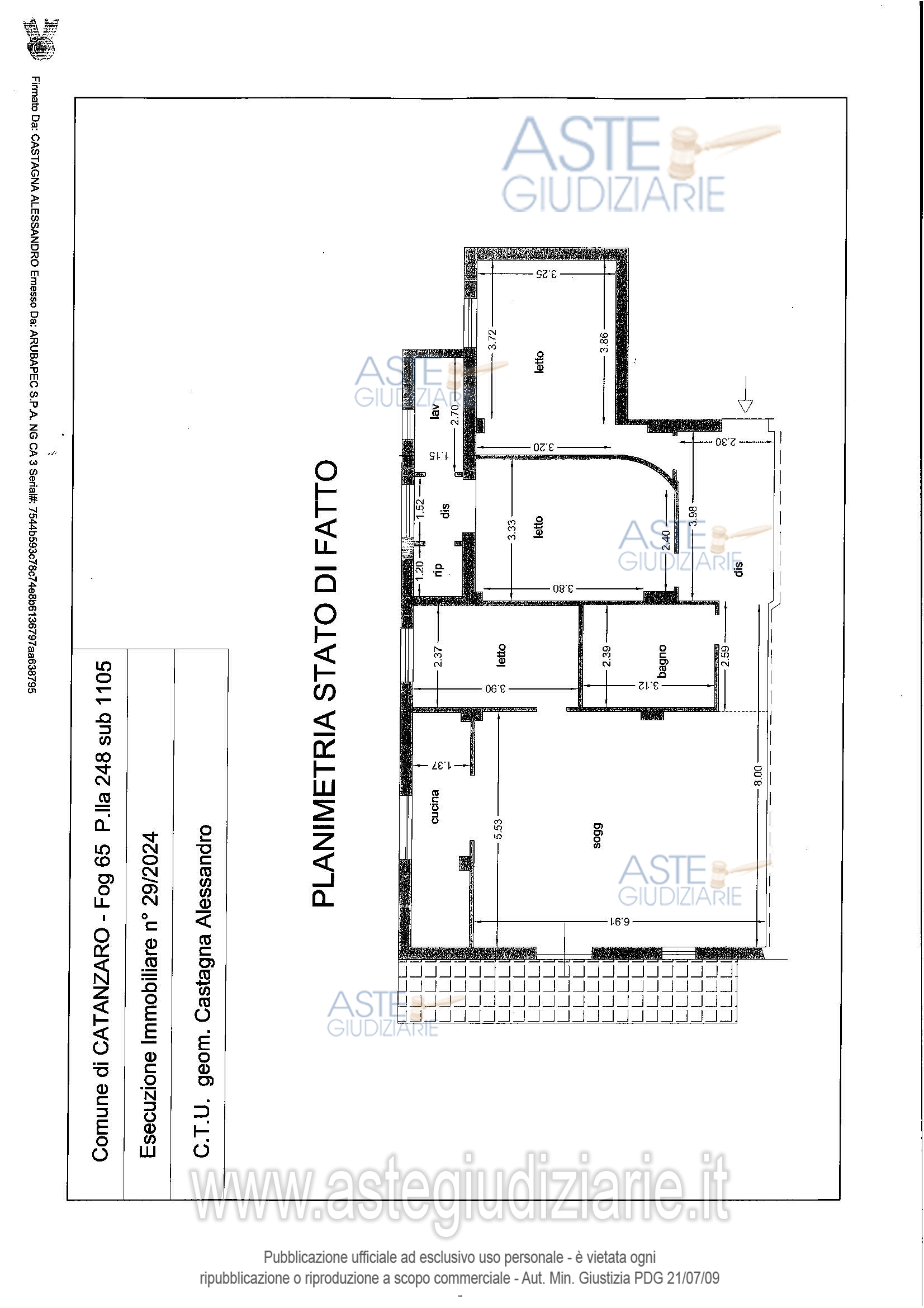
Appartamento via degli Svevi, 120, 88100 Catanzaro (CZ)

4,00
111,30
0
€ 42.750
Vendita all'asta Senza incanto, con gara telematica asincrona - LOTTO 1: Unità immobiliare ad uso residenziale, cat A/3, consistenza vani 4, composta da un soggiorno con annessa cucina, tre vani letto, bagno, corridoio, per una superficie complessiva di circa mq 111,30. Prezzo base € 42.750,00 (offerta minima € 32.062,50). Data inizio operazioni di vendita: 18/11/2025 ore 15:30. Giudice Dott. Chiara Di Credico. Professionista delegato alla vendita Avv. Claudia Consarino - Email "claudia.consarino@gmail.com"; Tel. 3281536999. Custode Giudiziario Avv. Claudia Consarino - Email "claudia.consarino@gmail.com"; Tel. 3281536999. Rif. Tribunale di Catanzaro - Espropriazione immobiliare (cartabia) n. 29/2024

Superficie 111,30 mq
Vani 4,00
Bagni
Piano 0

Tipologia di vendita Giudiziaria
Modalità di vendita Asincrona telematica
Termine presentazione offerte 17/11/2025 ore 12:00
Data e ora inizio gara 18/11/2025 ore 15:30
Codice ID astegiudiziarie.it 4329025
4,00
111,30
0
€ 42.750

Ti interessa questa vendita?

north_east

Clicca qui per essere indirizzato alla scheda sul sito di provenienza

Bene di astegiudiziarie.it