highlight_off
Riferimento annuncio 320761 info

Appartamento VIA OTA 13, 95100 Catania (CT)

6,00
141,00
0
€ 102.585
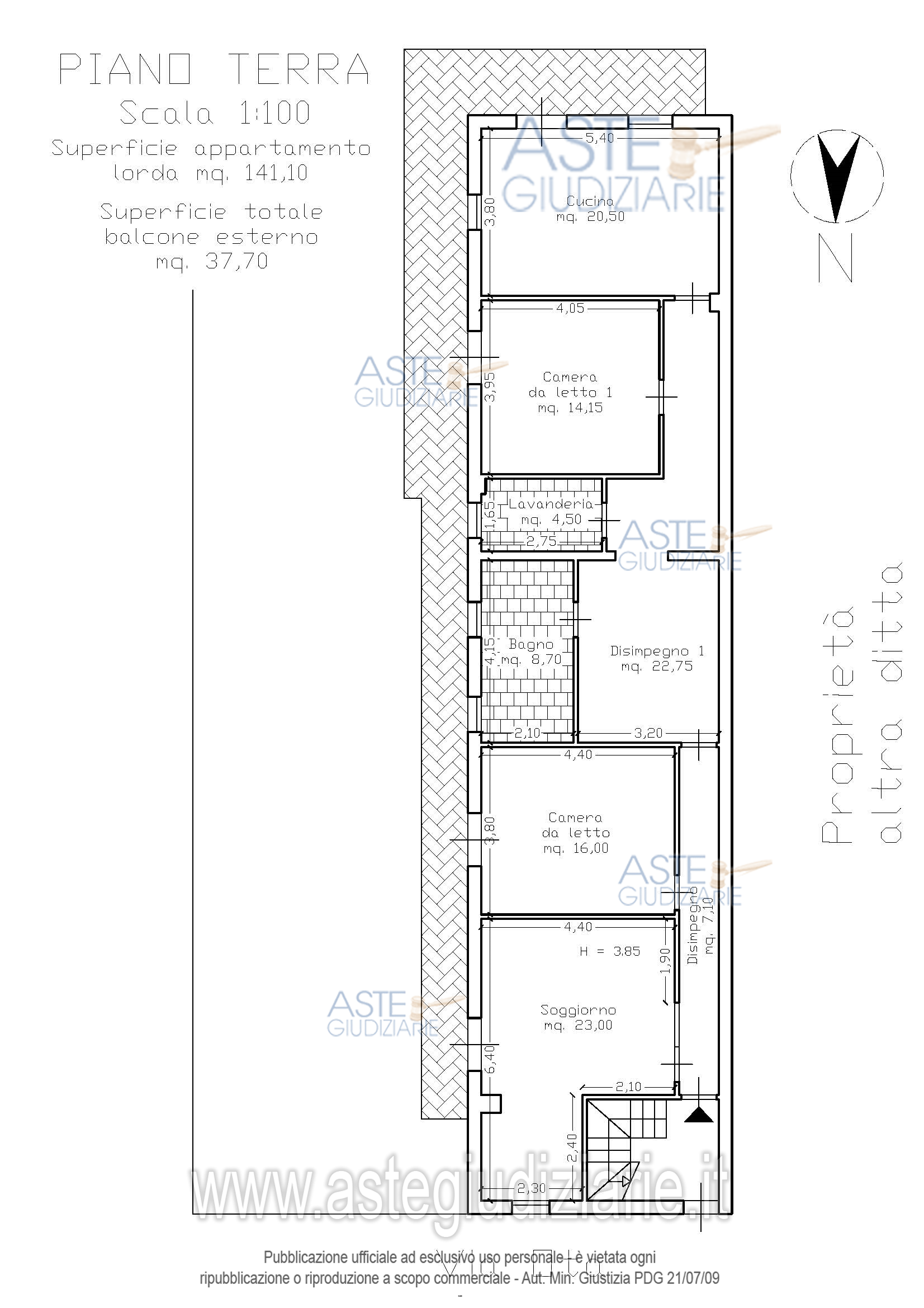
Vendita all'asta Senza incanto, con gara telematica sincrona mista - LOTTO UNICO: Appartamento, posto al piano terra, composto da tre vani più accessori, per una superficie lorda di 141,00 mq. e un’altezza di 3,85 m., oltre a 37,00 mq. di superficie balconata. Prezzo base € 102.585,00 (offerta minima € 76.938,75). Data vendita 10/02/2026 ore 12:30. Professionista delegato alla vendita Avv. Giuseppina Leonardi - Email "giuseppinaleonardi@studioleonardi.info"; Tel. 095535329. Custode Giudiziario Avv. Giuseppina Leonardi - Email "giuseppinaleonardi@studioleonardi.info"; Tel. 095535329. Rif. Tribunale di Catania - Esecuzione immobiliare post legge 80 n. 566/2021

Superficie 141,00 mq
Vani 6,00
Bagni
Piano 0

Tipologia di vendita Giudiziaria
Modalità di vendita Sincrona mista
Termine presentazione offerte 01/01/1900 ore 00:00
Data e ora inizio gara 10/02/2026 ore 12:30
Codice ID astegiudiziarie.it 4340530
6,00
141,00
0
€ 102.585

Ti interessa questa vendita?

north_east

Clicca qui per essere indirizzato alla scheda sul sito di provenienza

Bene di astegiudiziarie.it