highlight_off
Riferimento annuncio 318874 info

Appartamento Via Macello, 25, 95123 Catania CT, Italia, 95100 Catania (CT)

4,50
3
€ 71.000
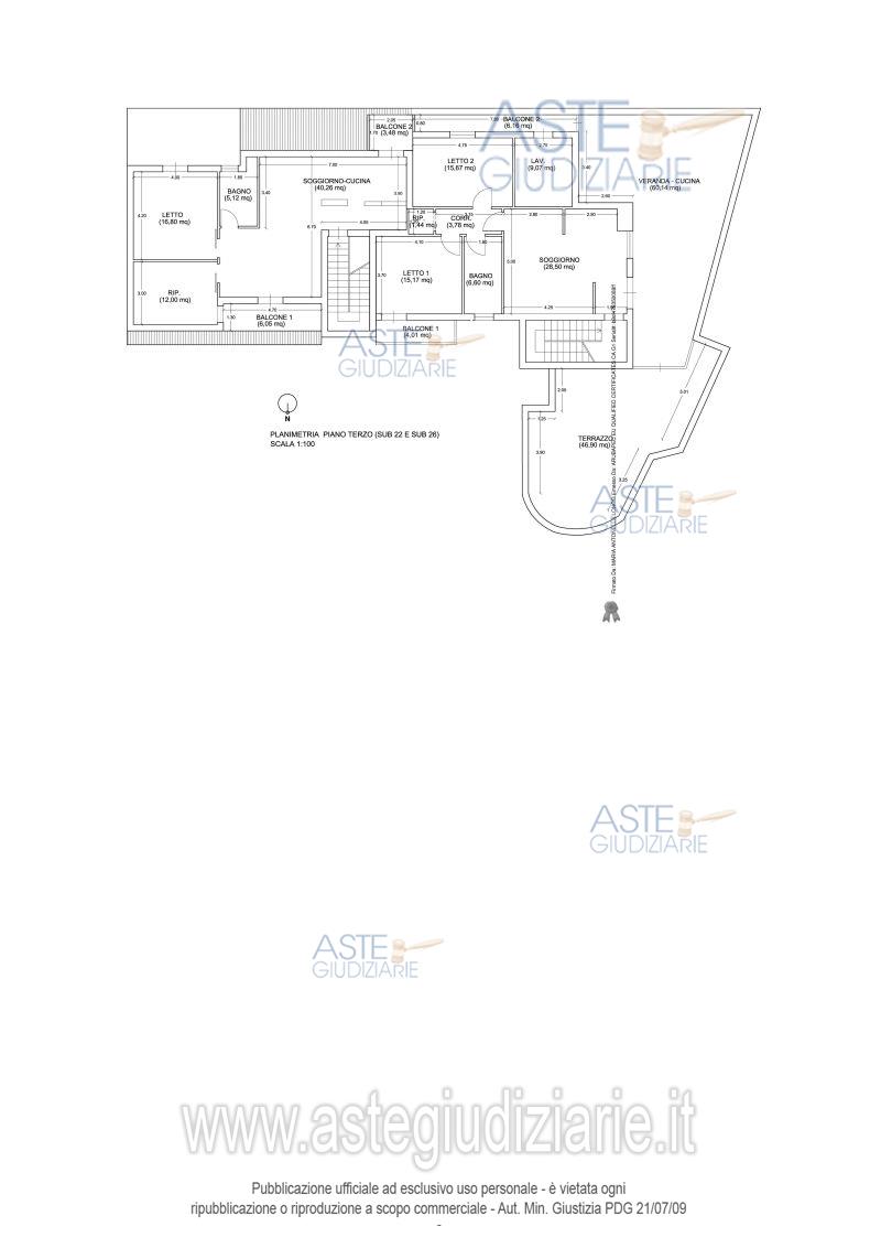
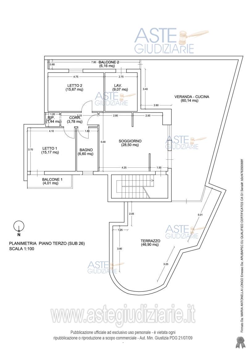
Vendita all'asta Senza incanto, con gara telematica sincrona - LOTTO 2: Unità immobiliare al piano terzo, scala D, interno 25 di 4,5 vani catastali. Prezzo base € 71.000,00 (offerta minima € 53.250,00). Data vendita 14/01/2026 ore 15:00. Giudice Laura Messina. Rif. Tribunale di Catania - Liquidazione controllata(cci) n. 32/2025

Superficie mq
Vani 4,50
Bagni
Piano 3

Tipologia di vendita Giudiziaria
Modalità di vendita Sincrona telematica
Termine presentazione offerte 13/01/2026 ore 13:00
Data e ora inizio gara 14/01/2026 ore 15:00
Codice ID astegiudiziarie.it 4339029
4,50
3
€ 71.000

Ti interessa questa vendita?

north_east

Clicca qui per essere indirizzato alla scheda sul sito di provenienza

Bene di astegiudiziarie.it