highlight_off
Riferimento annuncio 316410 info

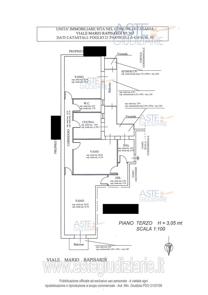
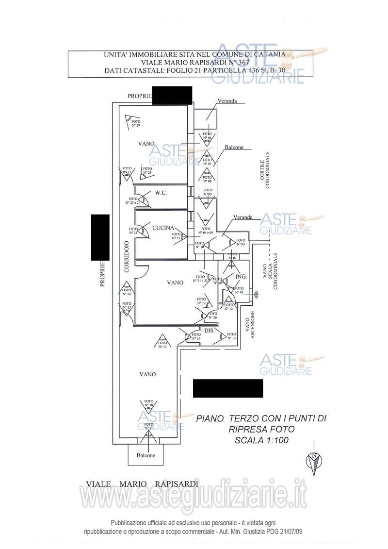
Appartamento VIALE MARIO RAPISARDI N.367, 95100 Catania (CT)

5,00
122,00
1
0
€ 85.000
Vendita all'asta Senza incanto, con gara telematica sincrona - LOTTO UNICO: LOTTO UNICO - Appartamento per civile abitazione sito in Catania, Viale Mario Rapisardi n. 367, posto al piano terzo, della superficie catastale di mq 122. Detto immobile risulta censito al Catasto Fabbricati del Comune di Catania al foglio 21 particella 436, sub 30, categoria A/3. Prezzo base € 85.000,00 (offerta minima € 63.750,00). Data vendita 17/12/2025 ore 10:00. Professionista delegato alla vendita Dott. Marco Vinci - Email "mvinci@studiomvinci.it"; Tel. 095388875. Custode Giudiziario Dott. Marco Vinci - Email "mvinci@studiomvinci.it"; Tel. 095388875. Rif. Tribunale di Catania - Espropriazione immobiliare (cartabia) n. 336/2023

Superficie 122,00 mq
Vani 5,00
Bagni 1
Piano 0

Tipologia di vendita Giudiziaria
Modalità di vendita Sincrona telematica
Termine presentazione offerte 01/01/1900 ore 00:00
Data e ora inizio gara 17/12/2025 ore 10:00
Codice ID astegiudiziarie.it 4337147
5,00
122,00
1
0
€ 85.000

Ti interessa questa vendita?

north_east

Clicca qui per essere indirizzato alla scheda sul sito di provenienza

Bene di astegiudiziarie.it