highlight_off
Riferimento annuncio 285923 info

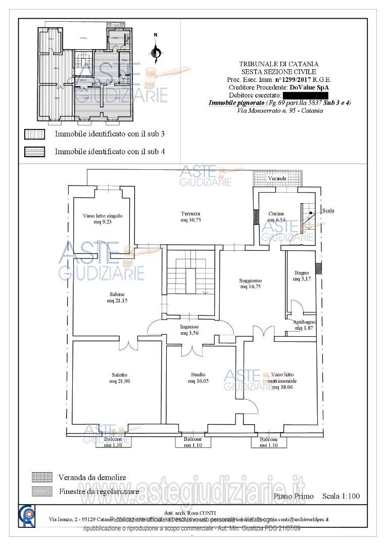
Appartamento Via Monserrato, 95, 95128 Catania CT, Italia, 95100 Catania (CT)

9,50
217,00
0
€ 181.000
Vendita all'asta Senza incanto, con gara telematica sincrona mista - LOTTO UNICO: Appartamento sito in Catania, Via Monserrato n. 95, costituito da un piano primo con terrazza a livello che affaccia su cortile comune, un piano ammezzato e un piano rialzato, oltre porzione di copertura adibita a terrazza, il tutto avente una superficie commerciale complessiva di mq 217; nel N.C.E.U. al Foglio 69, Particella 5837, Sub. 3, Categ. A/2, Classe 3, consistenza vani 6, r.c. € 573,27, e Sub. 4, Categ. A/3, Classe 3, consistenza vani 3,5, r.c. € 225,95. Prezzo base € 181.000,00 (offerta minima € 135.750,00). Data vendita 14/10/2025 ore 16:00. Professionista delegato alla vendita Avv. Carmelo Enrico Vasta - Email "visite@aavg.it"; Tel. 0952163386. Custode Giudiziario Avv. Carmelo Enrico Vasta - Email "visite@aavg.it"; Tel. 0952163386. Rif. Tribunale di Catania - Esecuzione immobiliare post legge 80 n. 1299/2017

Superficie 217,00 mq
Vani 9,50
Bagni
Piano 0

Tipologia di vendita Giudiziaria
Modalità di vendita Sincrona mista
Termine presentazione offerte 01/01/1900 ore 00:00
Data e ora inizio gara 14/10/2025 ore 16:00
Codice ID astegiudiziarie.it 4313074
9,50
217,00
0
€ 181.000

Ti interessa questa vendita?

north_east

Clicca qui per essere indirizzato alla scheda sul sito di provenienza

Bene di astegiudiziarie.it