highlight_off
Riferimento annuncio 251371 info

Appartamento Via Carmelitani, 45, 95131 Catania CT, Italia, 95100 Catania (CT)

5,50
322,70
2
0
€ 305.000
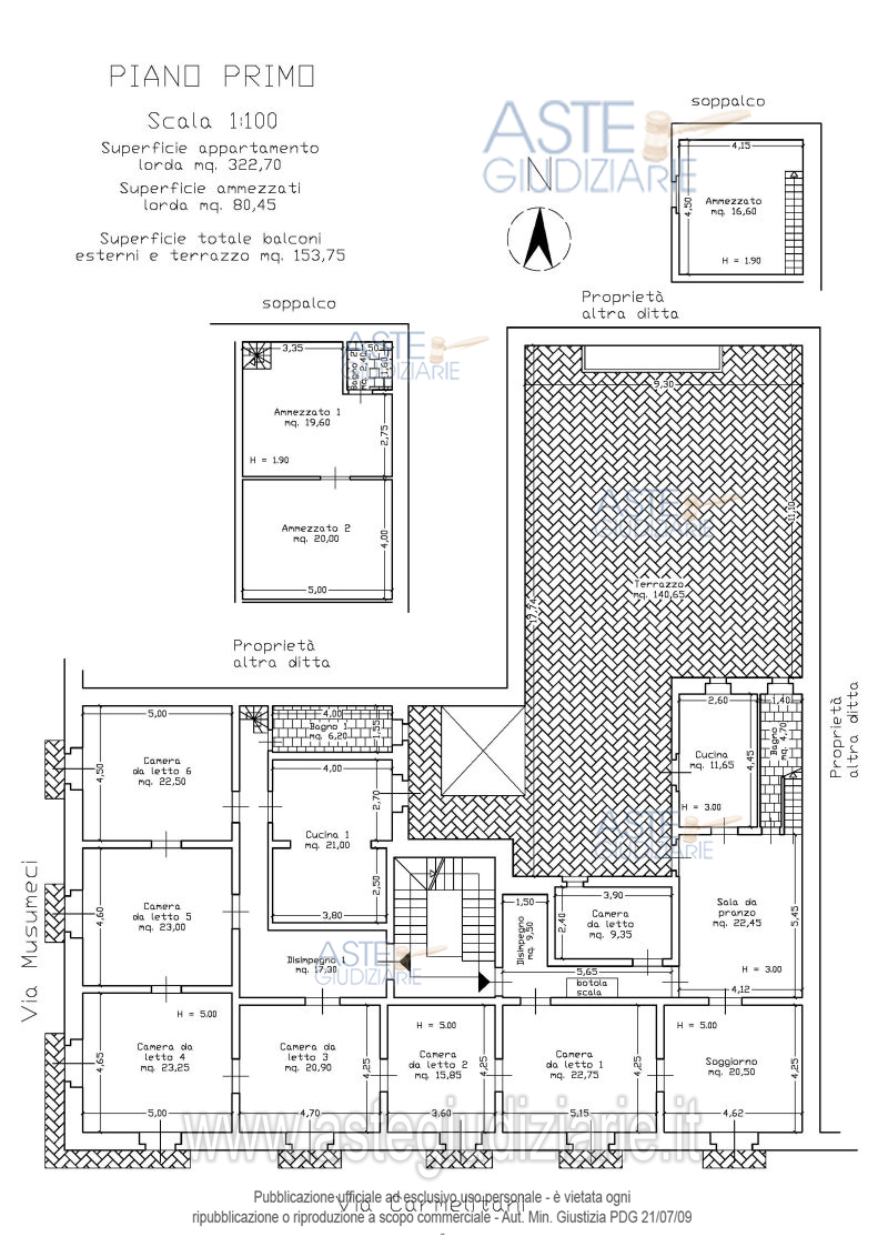
Vendita all'asta Senza incanto, con gara telematica sincrona mista - LOTTO 2: N. 2 appartamenti contigui siti in Catania, Via Carmelitani n. 45, posti al piano primo, con accesso autonomo dal pianerottolo comune, aventi superficie lorda complessiva di mq. 322,70 circa, oltre terrazzo, ammezzato e balconi; in Catasto Fabbricati al Foglio 69, particella 14855, subalterno 3, categoria A/2, classe 4, vani 5,5, superficie catastale 107 mq., r.c. euro 624,91 e al Foglio 69, particella 14455 (per errore, ma in realtà 14855), subalterno 4, categoria A/2, classe 5, vani 8, r.c. euro 1.074,23. Prezzo base € 305.000,00 (offerta minima € 228.750,00). Data vendita 16/04/2026 ore 16:00. Professionista delegato alla vendita Avv. Riccardo Todaro - Email "visite@aavg.it"; Tel. 0952163386. Custode Giudiziario Avv. Riccardo Todaro - Email "visite@aavg.it"; Tel. 0952163386. Rif. Tribunale di Catania - Esecuzione immobiliare post legge 80 n. 28/1994

Superficie 322,70 mq
Vani 5,50
Bagni 2
Piano 0

Tipologia di vendita Giudiziaria
Modalità di vendita Sincrona mista
Termine presentazione offerte 15/04/2026 ore 13:00
Data e ora inizio gara 16/04/2026 ore 16:00
Codice ID astegiudiziarie.it 136040
5,50
322,70
2
0
€ 305.000

Ti interessa questa vendita?

north_east

Clicca qui per essere indirizzato alla scheda sul sito di provenienza

Bene di astegiudiziarie.it