highlight_off
Riferimento annuncio 311804 info

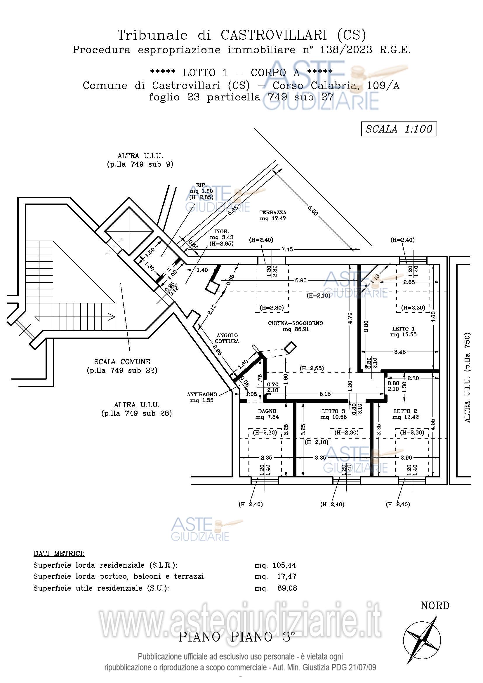
Appartamento Corso CALABRIA 109, 87012 Castrovillari (CS)

6,00
110,68
0
€ 48.499
Vendita all'asta Senza incanto, con gara telematica sincrona - LOTTO UNICO: A: piena proprietà 1/1 dell’APPARTAMENTO MANSARDATO B: piena proprietà 1/1 dell’AUTORIMESSA in box singolo ubicata al P.S1 (interrato) del fabbricato “A”. Prezzo base € 48.499,32 (offerta minima € 36.374,49). Data vendita 03/02/2026 ore 16:00. Giudice Giuliana Gaudiano. Professionista delegato alla vendita Dott. Giuseppe Gammaro - Email "studiogammaro@gmail.com". Custode Giudiziario Dott. Giuseppe Gammaro - Email "studiogammaro@gmail.com"; Tel. 3298913665. Rif. Tribunale di Castrovillari - Espropriazione immobiliare (cartabia) n. 138/2023

Superficie 110,68 mq
Vani 6,00
Bagni
Piano 0

Tipologia di vendita Giudiziaria
Modalità di vendita Sincrona telematica
Termine presentazione offerte 01/01/1900 ore 00:00
Data e ora inizio gara 03/02/2026 ore 16:00
Codice ID astegiudiziarie.it 4332047
6,00
110,68
0
€ 48.499

Ti interessa questa vendita?

north_east

Clicca qui per essere indirizzato alla scheda sul sito di provenienza

Bene di astegiudiziarie.it