highlight_off
Riferimento annuncio 298746 info

Appartamento CONTRADA MELIA MARINELLA SNC, 90030 Castronovo di Sicilia (PA)

102,00
0
€ 341.898
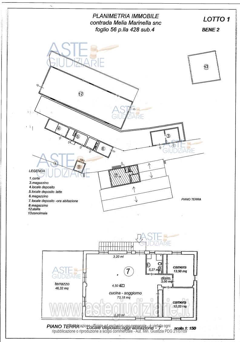
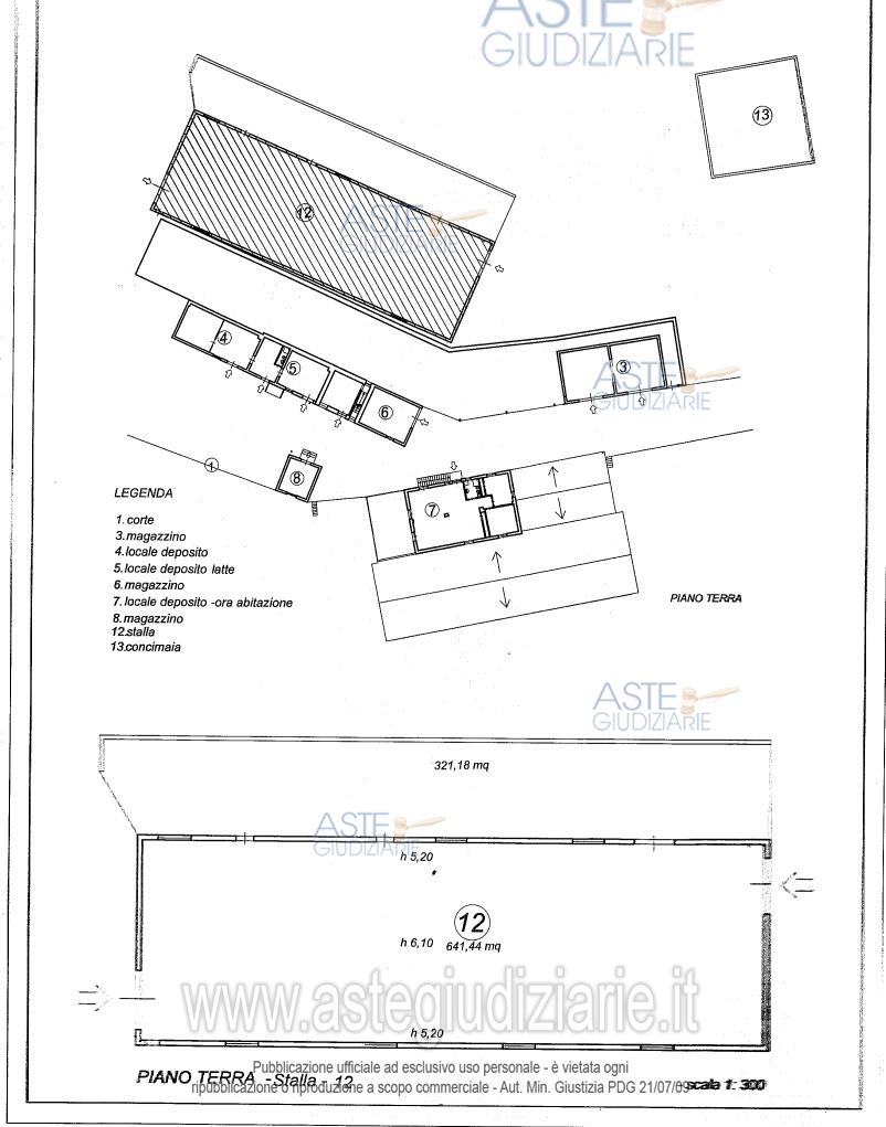
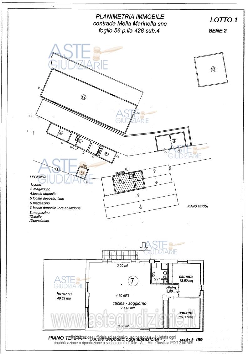
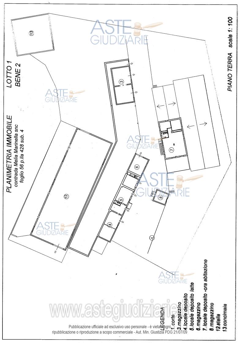
Vendita all'asta Senza incanto, con gara telematica sincrona - LOTTO 1: Il LOTTO 1, sito a Castronovo di Sicilia, cont. Melia Marinella snc., è formato da: BENE 1: Abit. resid. di tipo pop., ident. al foglio n. 56, p.lla 428 sub 2 cat. A/4, piano T e 1;BENE 2:Azienda agricola cost. da magazz., locali depos., locale lav. latte, sala mungitura, stalle, locale deposito oggi ad uso abit., concimaia censita al foglio n.56, p.lla 428 sub. 4, cat. D/10;BENE 3: Fienile e corte, censito al foglio n.56, p.lla 428 sub. 5, cat.D/10;BENE 4: Terreno Agri., censito al foglio n.56, p.lla 468. Prezzo base € 341.897,82 (offerta minima € 256.423,36). Data vendita 23/12/2025 ore 10:00. Giudice Debernardi. Professionista delegato alla vendita Avv. Luisa Centineo - Email "luisacentineo@gmail.com"; Cell. 3280241353; Tel. 3280241353. Custode Giudiziario Avv. Luisa Centineo - Email "luisacentineo@gmail.com"; Cell. 3280241353; Tel. 3280241353. Rif. Tribunale di Termini Imerese - Espropriazione immobiliare (cartabia) n. 75/2023

Superficie 102,00 mq
Vani
Bagni
Piano 0

Tipologia di vendita Giudiziaria
Modalità di vendita Sincrona telematica
Termine presentazione offerte 01/01/1900 ore 00:00
Data e ora inizio gara 23/12/2025 ore 10:00
Codice ID astegiudiziarie.it 4322774
102,00
0
€ 341.898

Ti interessa questa vendita?

north_east

Clicca qui per essere indirizzato alla scheda sul sito di provenienza

Bene di astegiudiziarie.it