highlight_off
Riferimento annuncio 265912 info

Appartamento Località Pergognano n. 42/A, 52043 Castiglion Fiorentino (AR)

0
€ 43.516
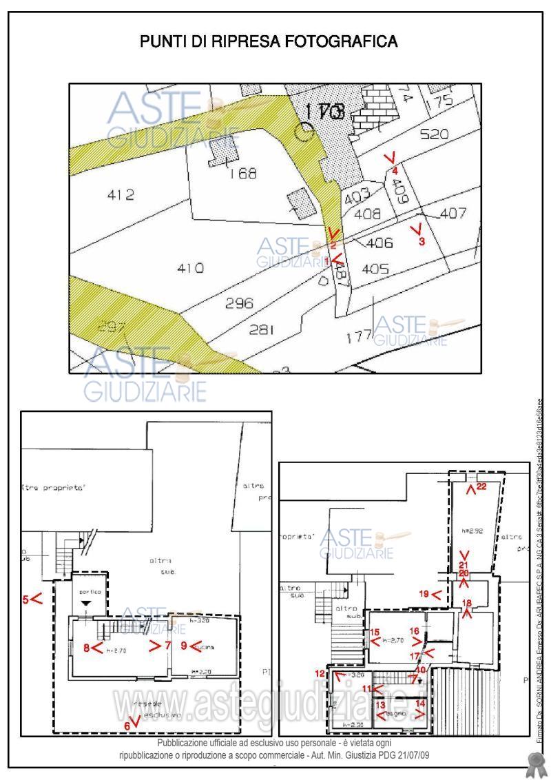
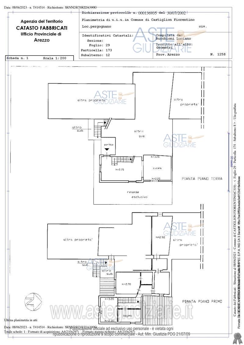
Vendita all'asta Senza incanto, con gara telematica sincrona mista - LOTTO UNICO: Il fabbricato si articola in due piani fuori terra collegati da scala interna. Composto da:Piano terra – portico di ingresso, soggiorno con angolo cottura e piccolo ripostiglio sottoscala oltre ad un locale con accesso dall’esterno del fabbricato ad uso rimessa, posto in aderenza alprospetto sud del fabbricato;Piano primo – tre camere (di cui una con guardaroba interno), un bagno, tre disimpegni ed un locale pluriuso. Prezzo base € 43.516,00 (offerta minima € 32.637,00). Data vendita 18/12/2025 ore 16:00. Professionista delegato alla vendita Avv. Francesca Brandini Dini - Email "avv.brandinidini@gmail.com"; Cell. 3296814204; Tel. 0575401724. Custode Giudiziario Avv. Istituto Vendite Giudiziarie Arezzo-Siena - Email "visiteivg@gmail.com"; Cell. 3397337017; Tel. 0575318111. Rif. Tribunale di Arezzo - Esecuzione immobiliare post legge 80 n. 5/2023

Superficie mq
Vani
Bagni
Piano 0

Tipologia di vendita Giudiziaria
Modalità di vendita Sincrona mista
Termine presentazione offerte 17/12/2025 ore 13:00
Data e ora inizio gara 18/12/2025 ore 16:00
Codice ID astegiudiziarie.it 4299524
0
€ 43.516

Ti interessa questa vendita?

north_east

Clicca qui per essere indirizzato alla scheda sul sito di provenienza

Bene di astegiudiziarie.it