highlight_off
Riferimento annuncio 292626 info

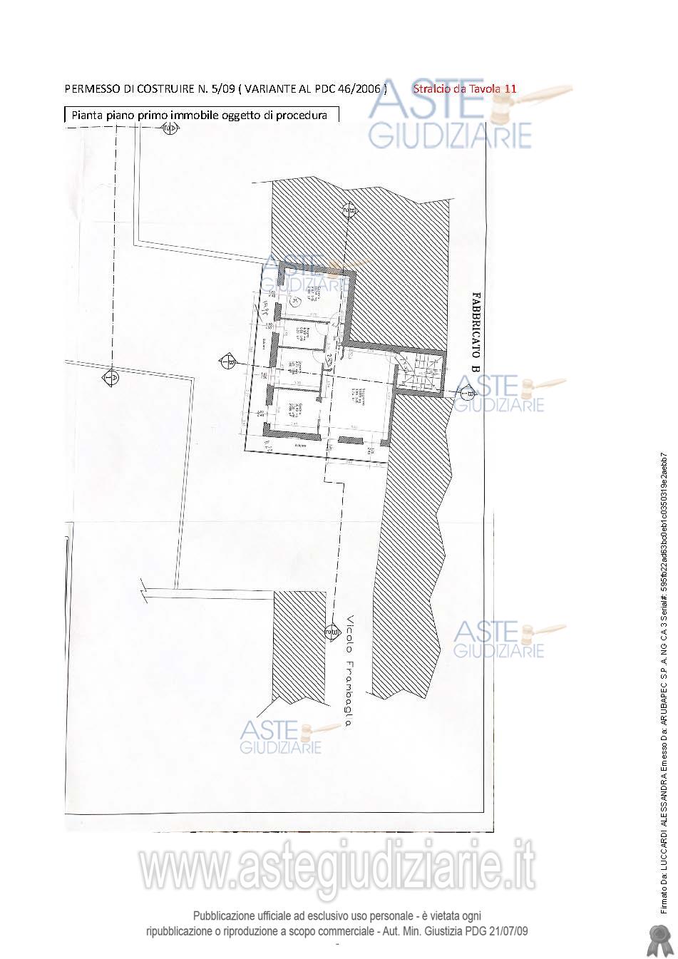
Appartamento Vicolo Frambaglia, 15053 Castelnuovo Scrivia AL, Italia, 15053 Castelnuovo Scrivia (AL)

335,00
0
€ 33.000
Vendita all'asta Senza incanto - LOTTO UNICO: Fabbricato residenziale in corso di costruzione, situato nel centro storico.Allo stato restano da completare gli impianti, le finiture e tutti i serramenti. Il progetto prevede la realizzazione di un box auto al piano terreno e due alloggi di cui uno al primo piano ed uno al secondo. Prezzo base € 33.000,00 (offerta minima € 24.750,00). Data vendita 14/07/2026 ore 16:00. Giudice: Roberta Brera. Professionista delegato alla vendita: Avv. Andrea Antonio Vacchini - Email "avvocatovacchini@gmail.com"; Tel. 0131/868592. Custode Giudiziario: Avv. Andrea Antonio Vacchini - Email "avvocatovacchini@gmail.com"; Tel. 0131/868592. Rif. Tribunale di Alessandria - Espropriazione immobiliare (cartabia) n. 25/2024

Superficie 335,00 mq
Vani
Bagni
Piano 0

Tipologia di vendita Giudiziaria
Modalità di vendita Presso il venditore
Termine presentazione offerte 01/01/1900 ore 00:00
Data e ora inizio gara 14/07/2026 ore 16:00
Codice ID astegiudiziarie.it 4317618
335,00
0
€ 33.000

Ti interessa questa vendita?

north_east

Clicca qui per essere indirizzato alla scheda sul sito di provenienza

Bene di astegiudiziarie.it