highlight_off
Riferimento annuncio 332218 info

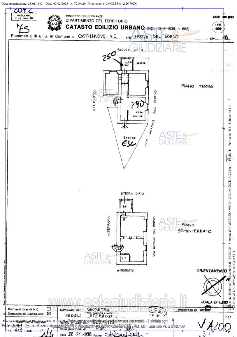
Appartamento Via Nuova del Borgo, 18, 56041 Castelnuovo di Val di Cecina (PI)

6,00
118,00
0
€ 80.000
Vendita all'asta Senza incanto, con gara telematica asincrona - LOTTO 3: Bene N° 7 Appartamento per civile abitazione ubicato ai piani terra e seminterrato di più ampio fabbricato composto al piano terra da ingresso, cucina, due camere, bagno e disimpegno oltre a due piccoli resedi esclusivi posti sul fronte e sul retro dell'edificio; al piano seminterrato, locale tecnico e ripostiglio. Bene N° 8 Appezzamento di terreno posto in adiacenza, su lato nord-ovest, dell'alloggio di cui al bene n.7 adibito a resede di pertinenza dello stesso. Qualità Seminativo . Prezzo base € 80.000,00 (offerta minima € 60.000,00). Data inizio operazioni di vendita: 24/06/2026 ore 16:30. Giudice Marco Zinna. Professionista delegato alla vendita Avv. Giuseppe Vecchio. Custode Giudiziario Dott. Cosimo Erriquez - Email "prenotazionipisa@astagiudiziaria.com". Rif. Tribunale di Pisa - Espropriazione immobiliare (cartabia) n. 183/2024

Superficie 118,00 mq
Vani 6,00
Bagni
Piano 0

Tipologia di vendita Giudiziaria
Modalità di vendita Asincrona telematica
Termine presentazione offerte 01/01/1900 ore 00:00
Data e ora inizio gara 24/06/2026 ore 16:30
Codice ID astegiudiziarie.it 4349628
6,00
118,00
0
€ 80.000

Ti interessa questa vendita?

north_east

Clicca qui per essere indirizzato alla scheda sul sito di provenienza

Bene di astegiudiziarie.it