highlight_off
Riferimento annuncio 315545 info

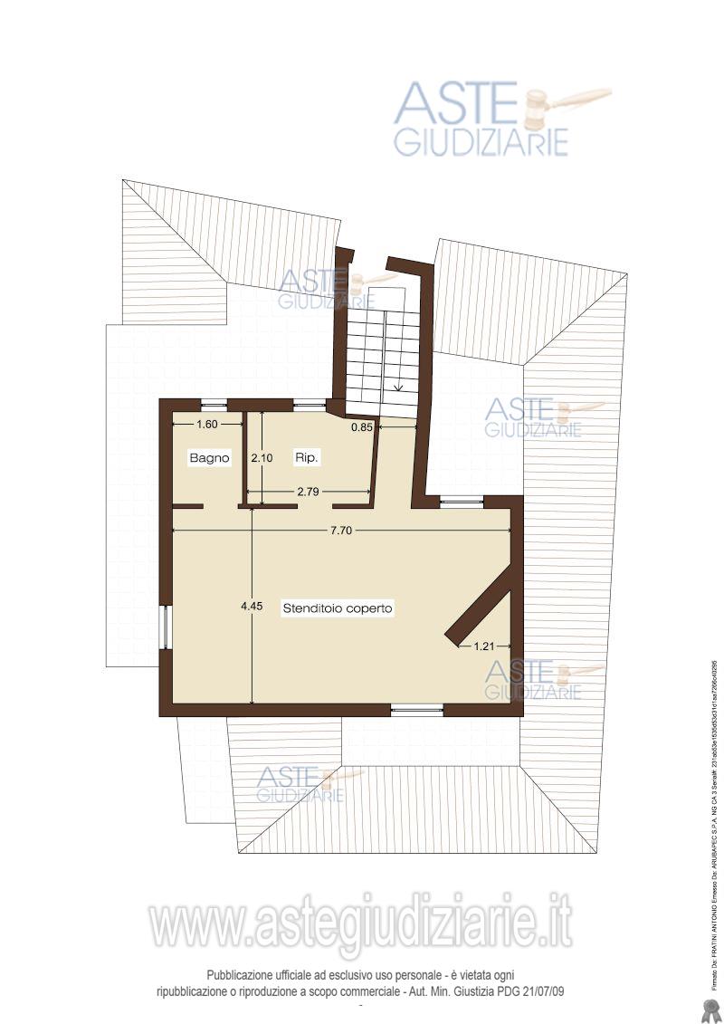
Appartamento 00060 Castelnuovo di Porto RM, Italia Piazza Giovanni XXIII n. 4, 00060 Castelnuovo di Porto (RM)

0
€ 56.860
Vendita all'asta Senza incanto, con gara telematica asincrona - LOTTO 01: quota pari a 1/1 del diritto di proprietà di appartamento ubicato a Castelnuovo di Porto (RM) - Piazza Giovanni (Ventitreesimo) XXIII n. 4, interno 4, posto al terzo piano di un fabbricato costituito da un’ala centrale che si articola su un piano interrato, un piano seminterrato, un piano terra, primo, secondo e terzo sottotetto ed un’ala laterale costituita da n. 3 piani fuori terra. Prezzo base € 56.860,00 (offerta minima € 42.645,00). Data inizio operazioni di vendita: 12/11/2025 ore 16:00. Giudice Marco Piovano. Professionista delegato alla vendita Avv. Laura Fioramanti - Email "avvlaurafioramanti@gmail.com"; Tel. 0774314226. Custode Giudiziario Ivg Di Roma Srl - Email "pvp@visiteivgroma.it"; Tel. 0689569801. Rif. Tribunale di Tivoli - Espropriazione immobiliare (cartabia) n. 196/2023

Superficie mq
Vani
Bagni
Piano 0

Tipologia di vendita Giudiziaria
Modalità di vendita Asincrona telematica
Termine presentazione offerte 11/11/2025 ore 23:59
Data e ora inizio gara 12/11/2025 ore 16:00
Codice ID astegiudiziarie.it 4335077
0
€ 56.860

Ti interessa questa vendita?

north_east

Clicca qui per essere indirizzato alla scheda sul sito di provenienza

Bene di astegiudiziarie.it