highlight_off
Riferimento annuncio 331329 info

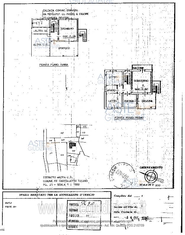
Appartamento Via Santa Lucia, 35, 28053 Castelletto sopra Ticino NO, Italia, 28053 Castelletto sopra Ticino (NO)

0
€ 208.800
Vendita all'asta Senza incanto, con gara telematica asincrona - LOTTO UNICO: Casa unifamiliare che si articola su tre livelli, la parte residenziale al piano primo, depositi ed autorimessa al piano terreno, al piano seminterrato ulteriori due autorimesse e vani adibiti a depositi, insiste su area di mq 650, con annessi due terreni indentificati da due distinte particelle. Prezzo base € 208.800,00 (offerta minima € 156.600,00). Data inizio operazioni di vendita: 29/05/2026 ore 12:00. Giudice: Rossella Incardona. Professionista delegato alla vendita: Dott. Elisabetta Cremonini - Email "procedure@studioelisabettacremonini.it"; Tel. 0321/612861. Custode Giudiziario: Istituto Vendite Giudiziarie - Ifir Piemonte Srl - Email "richiestevisite.novara@ivgpiemonte.it"; Tel. 0321/628676. Rif. Tribunale di Novara - Espropriazione immobiliare (cartabia) n. 72/2024

Superficie mq
Vani
Bagni
Piano 0

Tipologia di vendita Giudiziaria
Modalità di vendita Asincrona telematica
Termine presentazione offerte 28/05/2026 ore 12:00
Data e ora inizio gara 29/05/2026 ore 12:00
Codice ID astegiudiziarie.it 4348094
0
€ 208.800

Ti interessa questa vendita?

north_east

Clicca qui per essere indirizzato alla scheda sul sito di provenienza

Bene di astegiudiziarie.it