highlight_off
Riferimento annuncio 324728 info

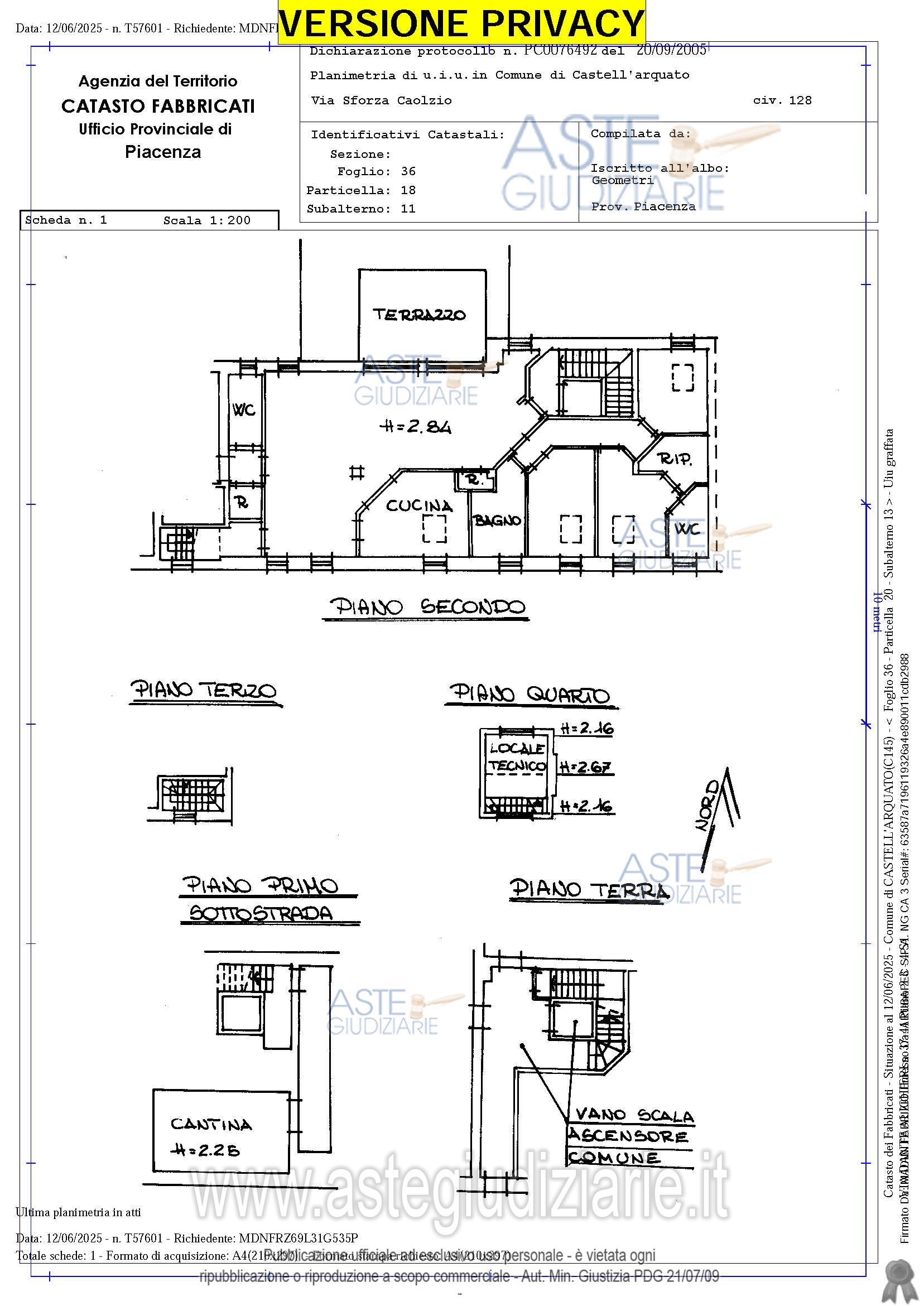
Appartamento Via Dante Alighieri 37-41, 29014 Castell'Arquato (PC)

9,00
241,00
0
€ 238.000
Vendita all'asta Senza incanto, con gara telematica asincrona - LOTTO UNICO: Piena proprietà di unità immobiliare ad uso residenziale, di tipologia appartamento mansardato. Prezzo base € 238.000,00 (offerta minima € 238.000,00). Data inizio operazioni di vendita: 24/03/2026 ore 15:30. Giudice Marta Lombardi. Professionista delegato alla vendita Avv. Michela Poggi - Email "avv.poggi@studiolegmp.it". Custode Giudiziario Avv. Cristina Niglio - Email "avv.cristinaniglio@virgilio.it"; Tel. 3494668776. Rif. Tribunale di Piacenza - Espropriazione immobiliare (cartabia) n. 18/2025

Superficie 241,00 mq
Vani 9,00
Bagni
Piano 0

Tipologia di vendita Giudiziaria
Modalità di vendita Asincrona telematica
Termine presentazione offerte 01/01/1900 ore 00:00
Data e ora inizio gara 24/03/2026 ore 15:30
Codice ID astegiudiziarie.it 4342609
9,00
241,00
0
€ 238.000

Ti interessa questa vendita?

north_east

Clicca qui per essere indirizzato alla scheda sul sito di provenienza

Bene di astegiudiziarie.it