highlight_off
Riferimento annuncio 133052 info

Appartamento via Cavour 7, 80053 Castellammare di Stabia (NA)

8,00
120,00
2
5
€ 322.500
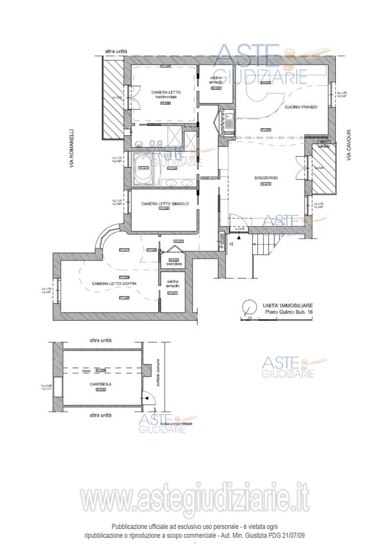
Vendita all'asta Senza incanto, con gara telematica asincrona - LOTTO UNICO: Appartamento al 5^ piano oltre rialzo (6^ livello fuori terra) in Castellammare di Stabia alla via Cavour 7 scala A, composto da soggiorno/cucina con balcone, zona notte con una camera padronale, cabina armadio, bagno riservato e balcone, nel corridoio un altro bagno ed altre due camere, di cui una con cabina armadio. All'immobile è annessa una cantinola al piano seminterrato. La superficie interna netta dell’abitazione è di circa mq. 120 oltre i due balconi di circa mq. 9,20 e la cantinola circa mq.13,50. Prezzo base € 322.500,00 (offerta minima € 241.875,00). Data inizio operazioni di vendita: 14/01/2026 ore 11:00. Professionista delegato alla vendita Avv. Simona Castellano - Email "simocastel@yahoo.it"; Cell. 3384584906; Tel. 0818812377. Custode Giudiziario Avv. Simona Castellano - Email "simocastel@yahoo.it"; Cell. 3384584906; Tel. 0818812377. Rif. Tribunale di Torre Annunziata - Esecuzione immobiliare post legge 80 n. 145/2019

Superficie 120,00 mq
Vani 8,00
Bagni 2
Piano 5

Tipologia di vendita Giudiziaria
Modalità di vendita Asincrona telematica
Termine presentazione offerte 01/01/1900 ore 00:00
Data e ora inizio gara 14/01/2026 ore 11:00
Codice ID astegiudiziarie.it 4241095
8,00
120,00
2
5
€ 322.500

Ti interessa questa vendita?

north_east

Clicca qui per essere indirizzato alla scheda sul sito di provenienza

Bene di astegiudiziarie.it