highlight_off
Riferimento annuncio 321485 info

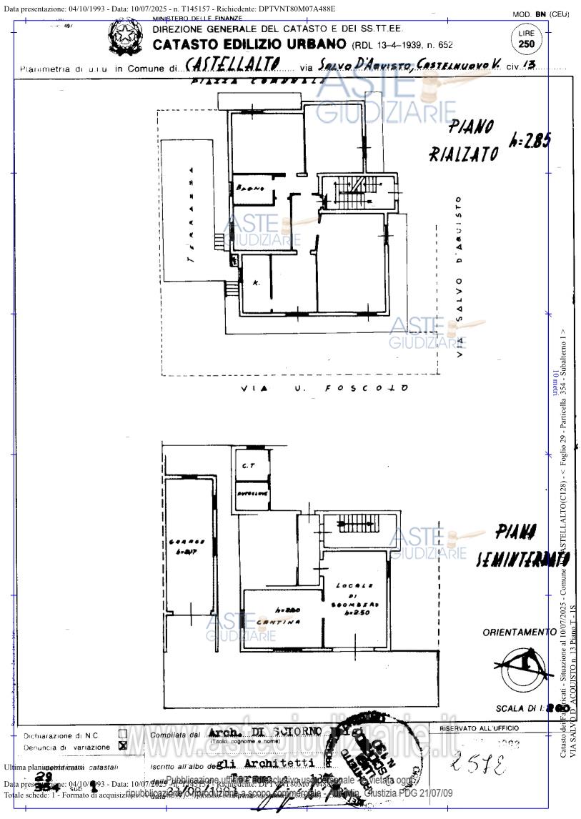
Appartamento Via Salvo D'Acquisto, 64020 Castelnuovo Vomano TE, Italia, 64020 Castellalto (TE)

9,00
194,50
1
€ 23.000
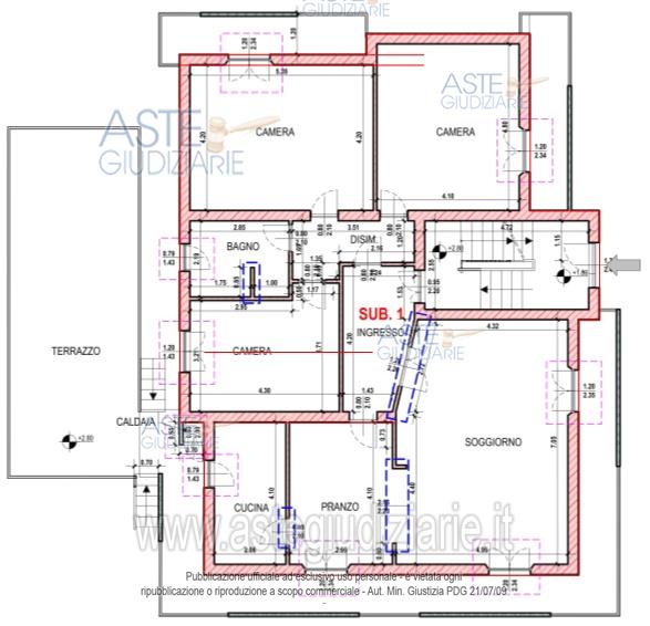
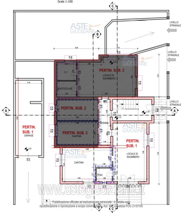
Vendita all'asta Senza incanto, con gara telematica asincrona - LOTTO 2: Bene N° 4 - Appartamento ubicato a Castellalto (TE) - via Salvo D'Acquisto n.13. Diritti pari ad 1/3 della nuda proprietà su compendio immobiliare costituito da appartamento e locali accessori. Prezzo base € 23.000,00 (offerta minima € 23.000,00). Data inizio operazioni di vendita: 04/02/2026 ore 10:00. Rif. Tribunale di Teramo - Liquidazione controllata(cci) n. 13/2025

Superficie 194,50 mq
Vani 9,00
Bagni
Piano 1

Tipologia di vendita Giudiziaria
Modalità di vendita Asincrona telematica
Termine presentazione offerte 03/02/2026 ore 23:59
Data e ora inizio gara 04/02/2026 ore 10:00
Codice ID astegiudiziarie.it 4341000
9,00
194,50
1
€ 23.000

Ti interessa questa vendita?

north_east

Clicca qui per essere indirizzato alla scheda sul sito di provenienza

Bene di astegiudiziarie.it