highlight_off
Riferimento annuncio 315303 info

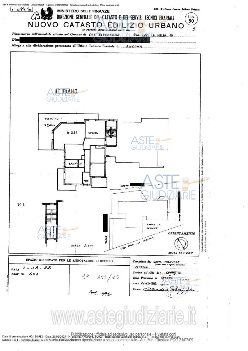
Appartamento Via Ugo La Malfa, 13, 60022 Castelfidardo AN, Italia, 60022 Castelfidardo (AN)

8,50
198,15
2
0
€ 199.622
Vendita all'asta Senza incanto, con gara telematica asincrona - LOTTO 1: Appartamento sito al primo piano costituito da zona giorno con ingresso, cucina abitabile e vasto locale destinato a soggiorno-pranzo; la zona notte è formata da un corridoio che conduce a quattro camere e due bagni. Prezzo base € 199.622,25 (offerta minima € 149.716,68). Data inizio operazioni di vendita: 18/11/2025 ore 10:00. Professionista delegato alla vendita Avv. Micol Toccaceli. Custode Giudiziario Avv. Micol Toccaceli - Email "micoltoccaceli@gmail.com"; Cell. 3333405196. Rif. Tribunale di Ancona - Esecuzione immobiliare post legge 80 n. 205/2017

Superficie 198,15 mq
Vani 8,50
Bagni 2
Piano 0

Tipologia di vendita Giudiziaria
Modalità di vendita Asincrona telematica
Termine presentazione offerte 01/01/1900 ore 00:00
Data e ora inizio gara 18/11/2025 ore 10:00
Codice ID astegiudiziarie.it 4336488
8,50
198,15
2
0
€ 199.622

Ti interessa questa vendita?

north_east

Clicca qui per essere indirizzato alla scheda sul sito di provenienza

Bene di astegiudiziarie.it