highlight_off
Riferimento annuncio 323949 info

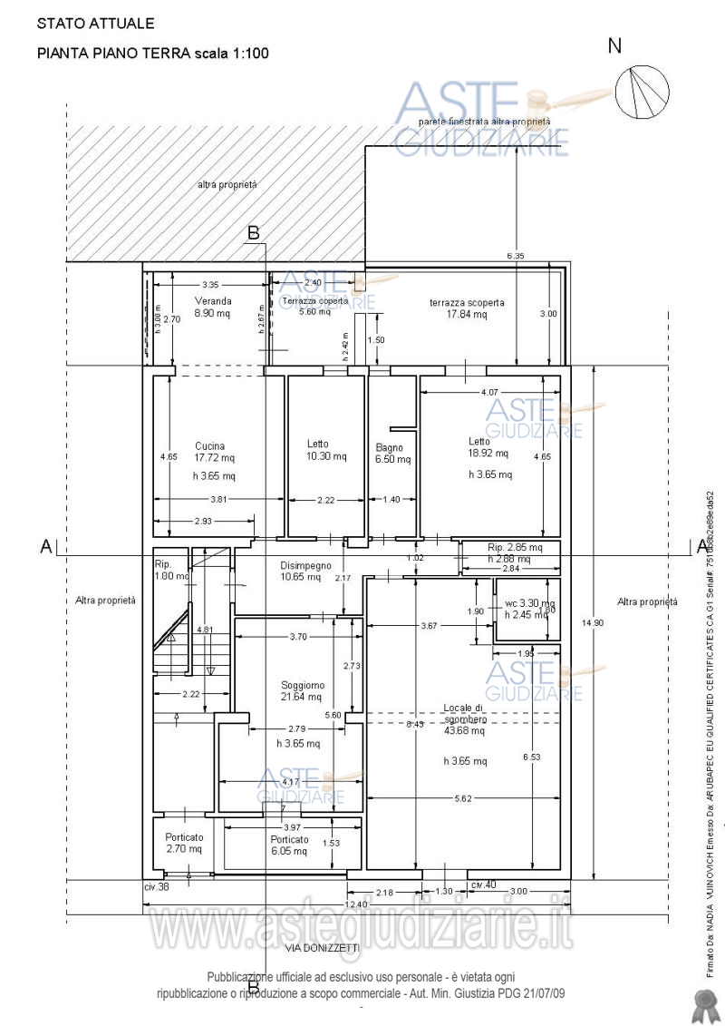
Appartamento via Gaetano Donizzetti n. 38-40, 90014 Casteldaccia (PA)

125,00
0
€ 62.597
Vendita all'asta Senza incanto, con gara telematica sincrona - LOTTO UNICO: Appartamento ubicato in Casteldaccia (PA), nella via Gaetano Donizzetti n. 38-40, identificato in Catasto al Foglio di Mappa n. 5 p.lla n. 2815 sub 1, Cat. A3, Cl.3, Cons. 6 vani, Superficie catastale 125 mq, Rendita € 433,82, di superficie convenzionale complessiva mq 141,20, posto al piano terra di un fabbricato su due elevazioni fuori terra oltre copertura a lastrico solare in cui emerge il torrino scala. Prezzo base € 62.597,00 (offerta minima € 46.948,00). Data vendita 21/07/2026 ore 14:30. Professionista delegato alla vendita: Avv. Francesca Maranto - Email "avv.francescamaranto@gmail.com"; Tel. 0921/421451; Cell. 320/7645460. Custode Giudiziario: Avv. Francesca Maranto - Email "avv.francescamaranto@gmail.com"; Tel. 0921/421451; Cell. 320/7645460. Rif. Tribunale di Termini Imerese - Espropriazione immobiliare (cartabia) n. 54/2025

Superficie 125,00 mq
Vani
Bagni
Piano 0

Tipologia di vendita Giudiziaria
Modalità di vendita Sincrona telematica
Termine presentazione offerte 20/07/2026 ore 17:00
Data e ora inizio gara 21/07/2026 ore 14:30
Codice ID astegiudiziarie.it 4341693
125,00
0
€ 62.597

Ti interessa questa vendita?

north_east

Clicca qui per essere indirizzato alla scheda sul sito di provenienza

Bene di astegiudiziarie.it