highlight_off
Riferimento annuncio 330881 info

Appartamento Viale delle Camelie, 3, 81030 Castel Volturno CE, Italia, 81030 Castel Volturno (CE)

5,50
99,93
0
€ 60.000
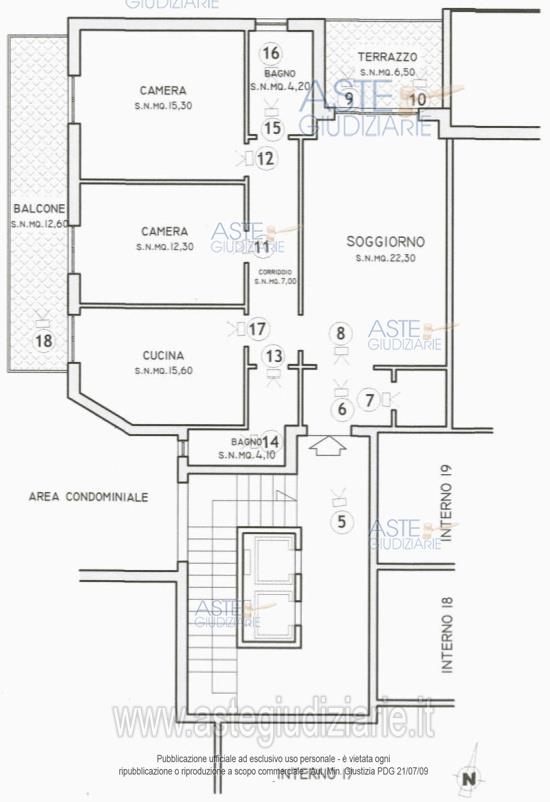
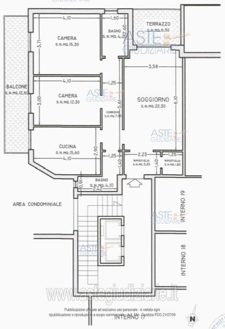
Vendita all'asta Senza incanto, con gara telematica asincrona - LOTTO UNICO: Piena ed intera proprietà di appartamento facente parte del fabbricato ubicato in Castelvolturno (CE) al Viale delle Camelie n.3, località Coppola–Pinetamare.L’appartamento, contraddistinto con l’interno n.20, è posto al quinto piano della scala A del fabbricato 24/25, ed è composto da ingresso con ripostiglio, soggiorno, due camere, due bagni, corridoio e cucina, oltre a terrazzo e balcone. Prezzo base € 60.000,00 (offerta minima € 45.000,00). Data inizio operazioni di vendita: 18/06/2026 ore 10:30. Giudice: Elmelinda Mercurio. Professionista delegato alla vendita: Dott. Barbara Bonafiglia - Email "barbarabonafiglia@gmail.com"; Cell. 328/6866669. Custode Giudiziario: Dott. Barbara Bonafiglia - Email "barbarabonafiglia@gmail.com"; Cell. 328/6866669. Rif. Tribunale di Santa Maria Capua Vetere - Esecuzione immobiliare post legge 80 n. 234/2024

Superficie 99,93 mq
Vani 5,50
Bagni
Piano 0

Tipologia di vendita Giudiziaria
Modalità di vendita Asincrona telematica
Termine presentazione offerte 01/01/1900 ore 00:00
Data e ora inizio gara 18/06/2026 ore 10:30
Codice ID astegiudiziarie.it 4348712
5,50
99,93
0
€ 60.000

Ti interessa questa vendita?

north_east

Clicca qui per essere indirizzato alla scheda sul sito di provenienza

Bene di astegiudiziarie.it