Riferimento annuncio 234927
Appartamento Via delle Coste s.n. - Frazione Monterubiaglio, 05014 Castel Viscardo (TR)
0
€ 141.900
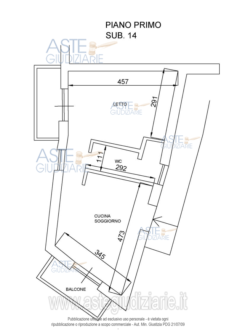
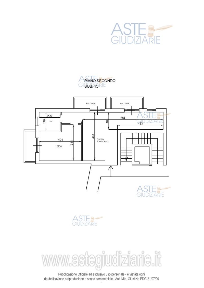
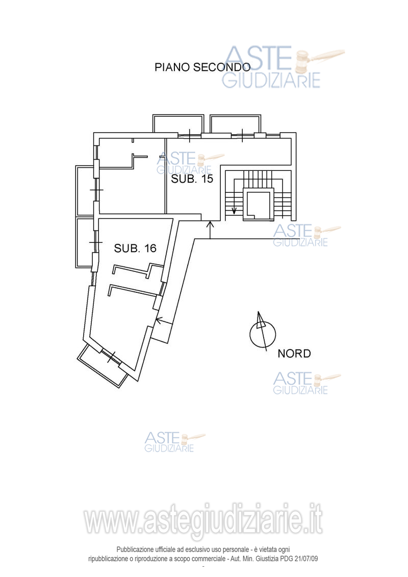
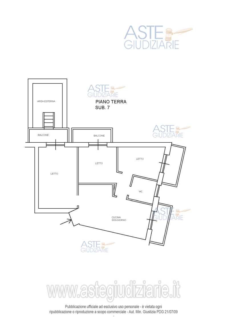
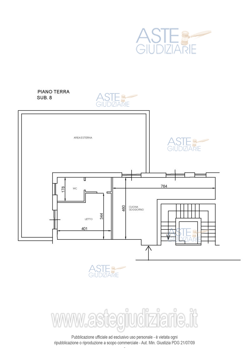
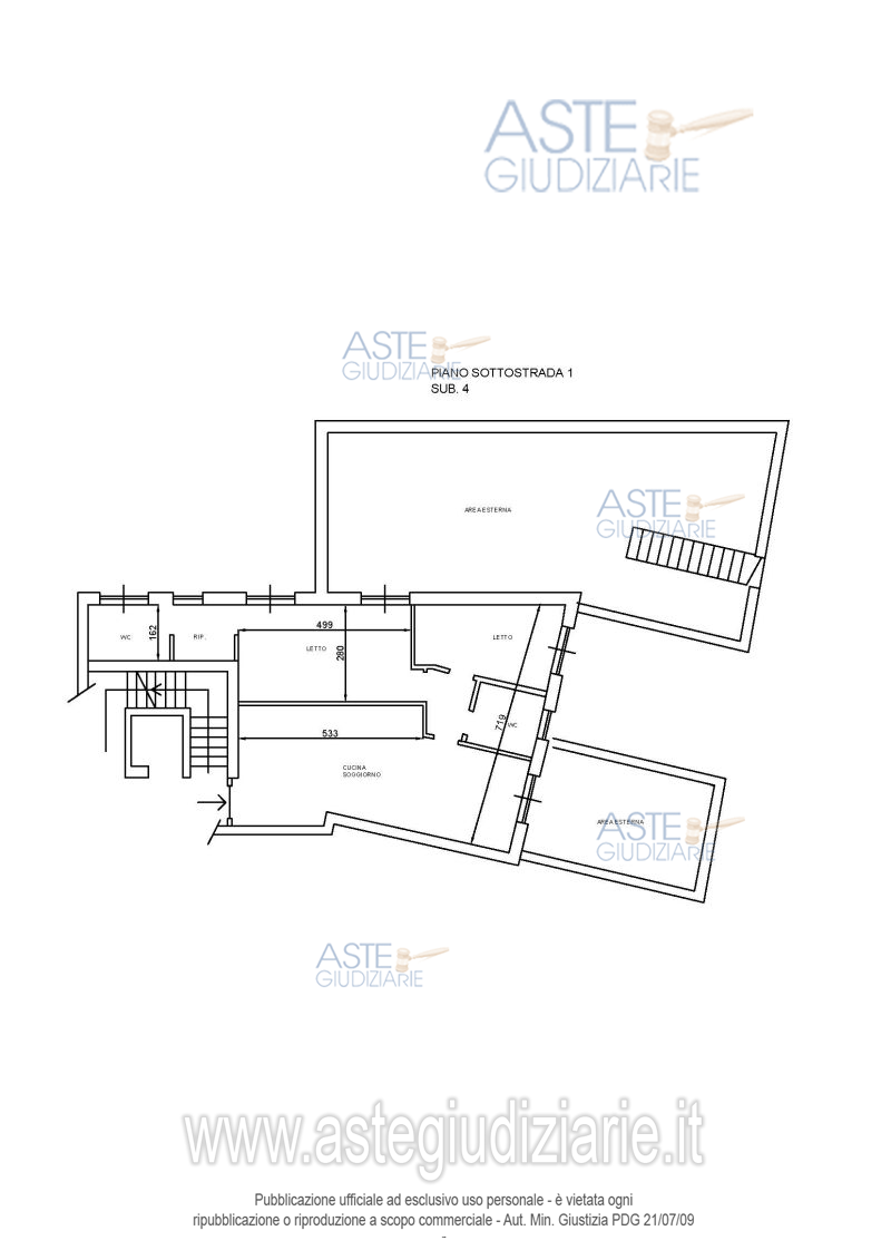
Vendita all'asta Senza incanto, con gara telematica asincrona - LOTTO UNICO: Diritti di piena proprietà 1/1 su compendio composto da n. 14 appartamenti (sub. da 2 a 4 e da 6 a 16) e da n. 5 posti auto (sub da 17 a 21) collocati in un fabbricato composto di n. 15 appartamenti oltre al BCNC (sub 1), comprendente tutte le parti comuni alle altre proprietà immobiliari (vano scala, cortile di ingresso ed i ballatoi di distribuzione ai vari piani). Terreni agricoli confinanti con il compendio identificati al foglio 12, p.lle 386,391, 405, 408 e 410. I beni sono liberi. Prezzo base € 141.900,00 (offerta minima € 106.425,00). Data inizio operazioni di vendita: 22/10/2025 ore 14:15. Giudice Francesco Angelini. Professionista delegato alla vendita Dott. Marco Panebianco - Email "marco.panebianco@inwind.it"; Tel. 0744432093. Custode Giudiziario Dott. Marco Panebianco - Email "marco.panebianco@inwind.it"; Tel. 0744432093. Rif. Tribunale di Terni - Esecuzione immobiliare post legge 80 n. 13/2021
Superficie | mq |
---|---|
Vani | |
Bagni | |
Piano | 0 |
Tipologia di vendita | Giudiziaria |
---|---|
Modalità di vendita | Asincrona telematica |
Termine presentazione offerte | 21/10/2025 ore 11:00 |
Data e ora inizio gara | 22/10/2025 ore 14:15 |
- file_download Ordinanza
- file_download Ordinanza
- file_download Ordinanza
- file_download Perizia
- file_download Perizia
- file_download Perizia
- file_download Perizia
- file_download Perizia
- file_download Perizia
- file_download Perizia
- file_download Perizia
- file_download Perizia
- file_download Perizia
- file_download Perizia
- file_download Perizia
- file_download Perizia
- file_download Perizia
- file_download Perizia
- file_download Perizia
- file_download Perizia
- file_download Perizia
- file_download Avviso