highlight_off
Riferimento annuncio 330659 info

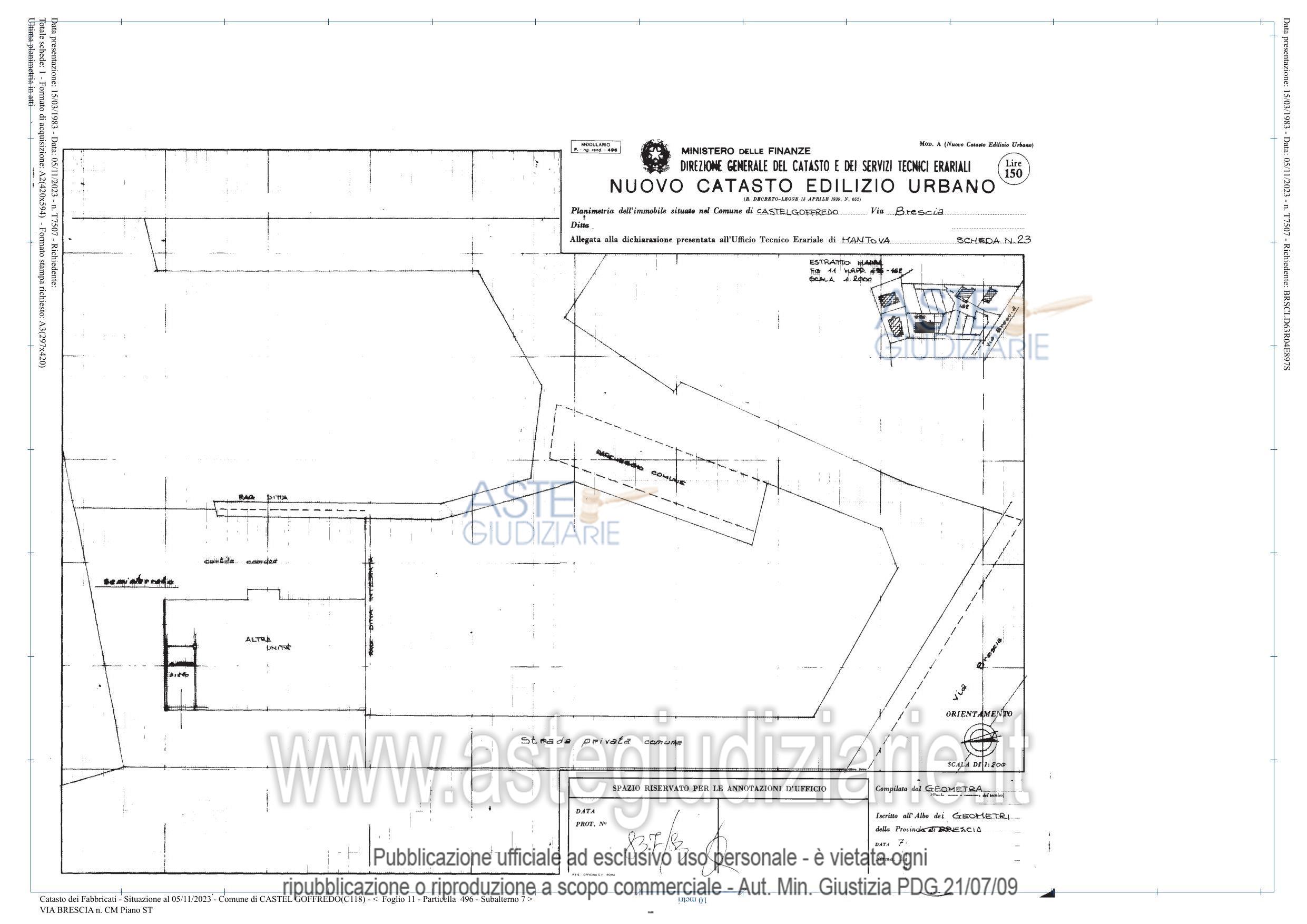
Appartamento Via Brescia, 46042 Castel Goffredo MN, Italia, 46042 Castel Goffredo (MN)

550,00
9700,00
1
0
€ 51.000
Vendita all'asta Senza incanto, con gara telematica sincrona mista - LOTTO UNICO: Piena proprietà di appartamento di civile abitazione al piano secondo con autorimessa e cantina al piano seminterrato di un complesso condominiale in Comune di Castel Goffredo (MN), Via Brescia, nonché piena proprietà della quota di 12/192 di area urbana costituente l'area comune di accesso a tutto il complesso. Prezzo base € 51.000,00 (offerta minima € 38.250,00). Data vendita 27/05/2026 ore 15:00. Giudice: Francesca Arrigoni. Professionista delegato alla vendita: Not. Roberta Matera - Email "rmatera@notariato.it". Custode Giudiziario: Ivg Mantova So.Ve.Mo. - Email "immobiliaremantova@sovemo.com"; Tel. 0376/220694. Rif. Tribunale di Mantova - Espropriazione immobiliare (cartabia) n. 88/2023

Superficie 9700,00 mq
Vani 550,00
Bagni 1
Piano 0

Tipologia di vendita Giudiziaria
Modalità di vendita Sincrona mista
Termine presentazione offerte 01/01/1900 ore 00:00
Data e ora inizio gara 27/05/2026 ore 15:00
Codice ID astegiudiziarie.it 4347850
550,00
9700,00
1
0
€ 51.000

Ti interessa questa vendita?

north_east

Clicca qui per essere indirizzato alla scheda sul sito di provenienza

Bene di astegiudiziarie.it