highlight_off
Riferimento annuncio 296721 info

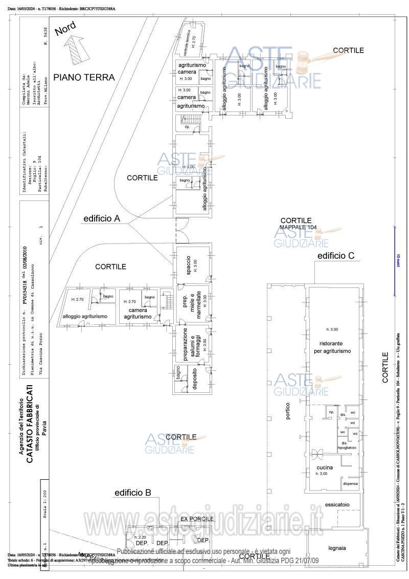
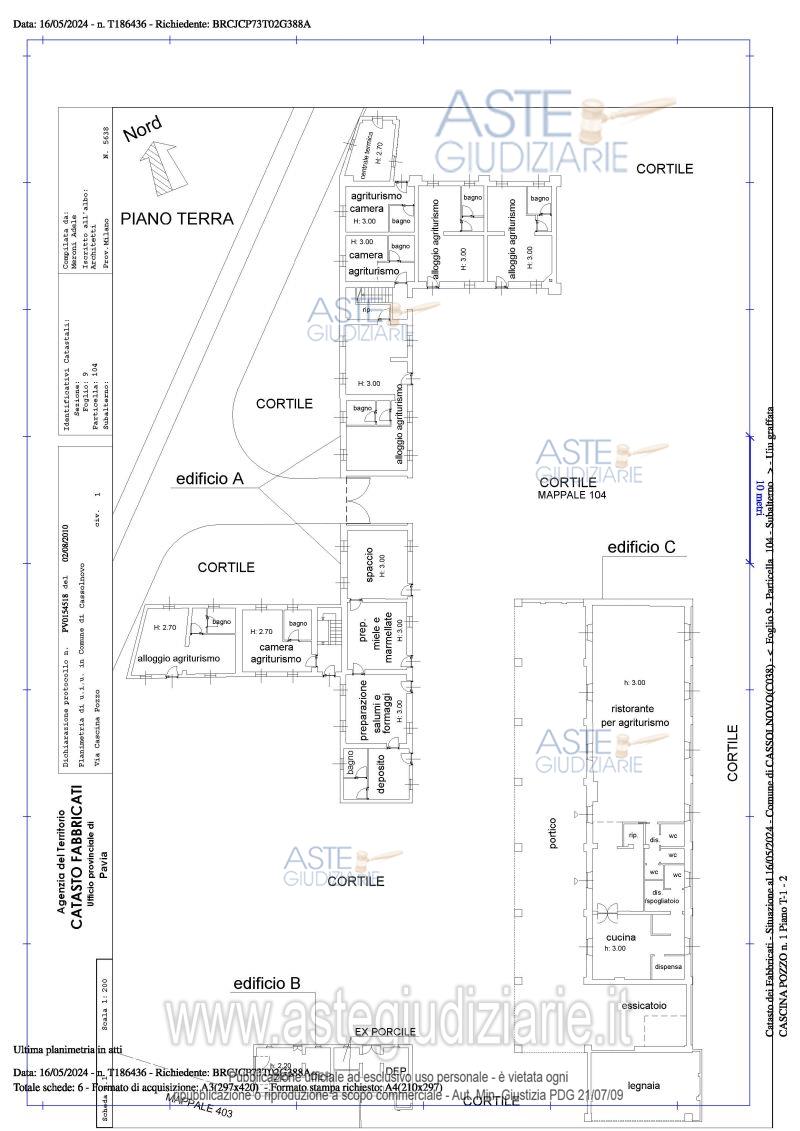
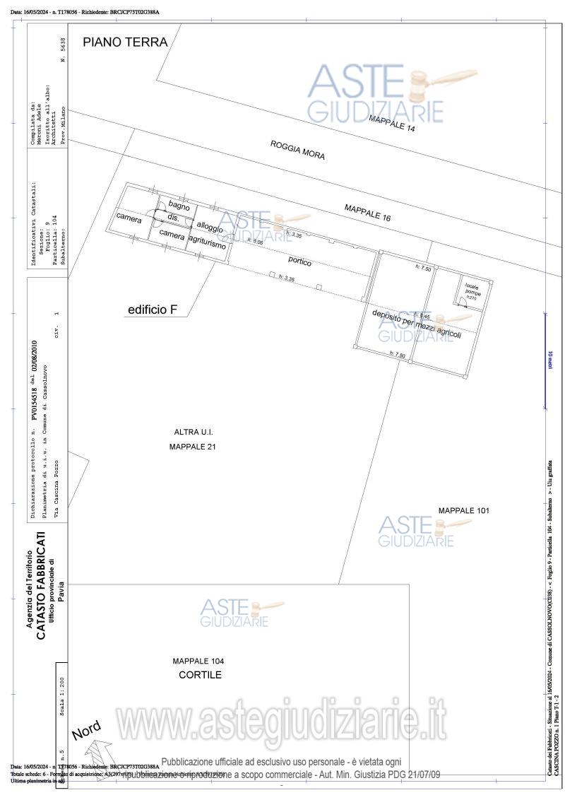
Appartamento Cascina Pozzo SNC, 27023 Cassolnovo (PV)

0
€ 603.029
Vendita all'asta Senza incanto, con gara telematica asincrona - LOTTO UNICO: Azienda agricola composta da un insieme di fabbricati e terreni che costituiscono la “Cascina Pozzo” posta nell’ambito agricolo nord ovest del Comune di Cassolnovo. Prezzo base € 603.029,00 (offerta minima € 452.272,00). Data inizio operazioni di vendita: 20/11/2025 ore 15:00. Giudice Dott. Francesco Rocca. Professionista delegato alla vendita Dott. Stefano Broglia. Custode Giudiziario Istituto Vendite Giudiziarie Di Vigevano - Email "immobiliarivigevano@ifir.it"; Tel. 0381691137. Rif. Tribunale di Pavia - Esecuzione immobiliare post legge 80 n. 336/2019

Superficie mq
Vani
Bagni
Piano 0

Tipologia di vendita Giudiziaria
Modalità di vendita Asincrona telematica
Termine presentazione offerte 01/01/1900 ore 00:00
Data e ora inizio gara 20/11/2025 ore 15:00
Codice ID astegiudiziarie.it 4321285
0
€ 603.029

Ti interessa questa vendita?

north_east

Clicca qui per essere indirizzato alla scheda sul sito di provenienza

Bene di astegiudiziarie.it