highlight_off
Riferimento annuncio 301269 info

Appartamento Via Capolanza sn, 87011 Cassano all'Ionio (CS)

600,00
0
€ 147.829
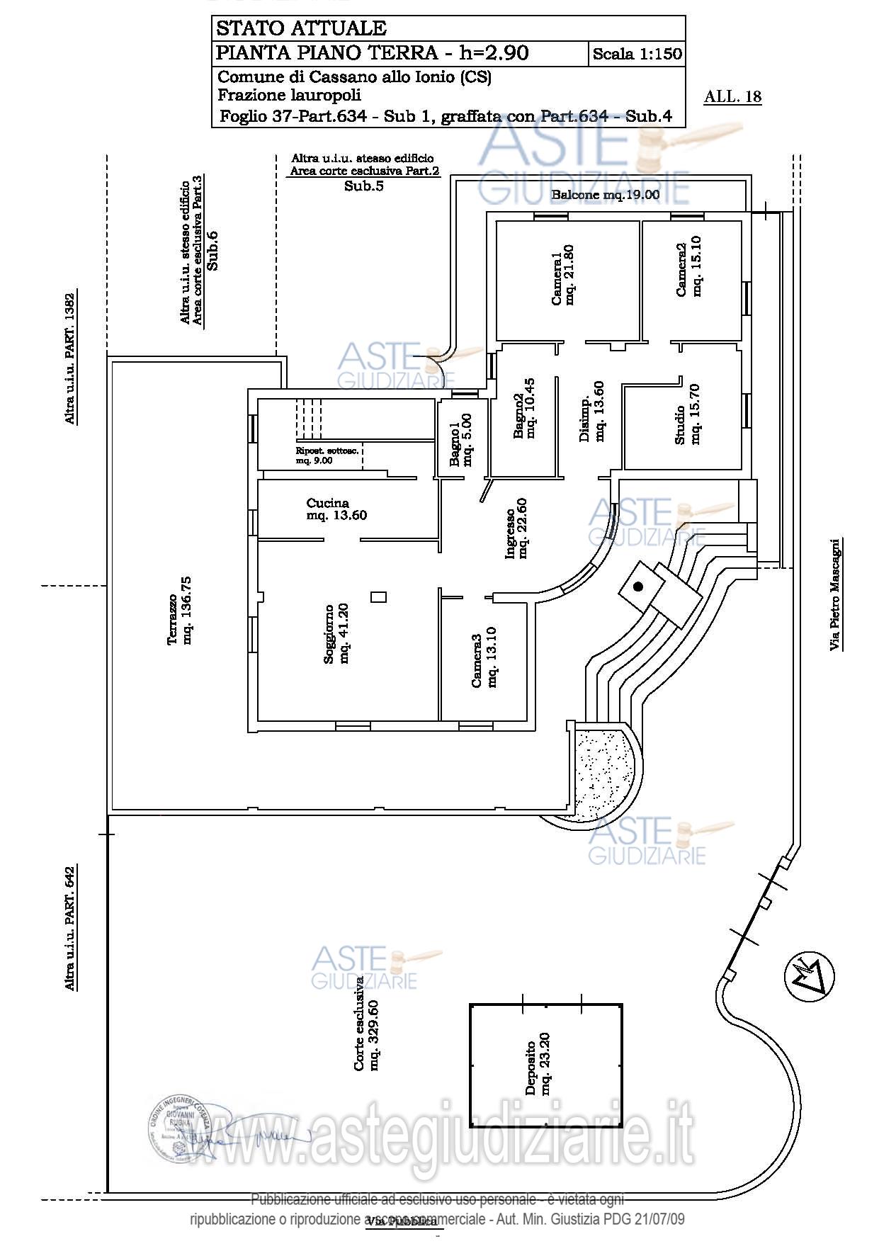
Vendita all'asta Senza incanto, con gara telematica sincrona - LOTTO 1: Unità immobiliare sita in Cassano allo Ionio (CS) alla via Capolanza, distinta al Catasto Fabbricati N.C.E.U. Fg. 37, p.lla 634 Sub 1 graffata con p.lla 634 Sub 4, cat. A/7. Prezzo base € 147.828,75 (offerta minima € 110.871,56). Data vendita 20/04/2026 ore 16:00. Giudice Giuliana Gaudiano. Professionista delegato alla vendita Avv. Luca Dalba - Email "lucadalba@studiodalba.it". Custode Giudiziario Avv. Luca D Alba - Email "lucadalba@studiodalba.it". Rif. Tribunale di Castrovillari - Esecuzione immobiliare post legge 80 n. 136/2022

Superficie 600,00 mq
Vani
Bagni
Piano 0

Tipologia di vendita Giudiziaria
Modalità di vendita Sincrona telematica
Termine presentazione offerte 01/01/1900 ore 00:00
Data e ora inizio gara 20/04/2026 ore 16:00
Codice ID astegiudiziarie.it 4324855
600,00
0
€ 147.829

Ti interessa questa vendita?

north_east

Clicca qui per essere indirizzato alla scheda sul sito di provenienza

Bene di astegiudiziarie.it