highlight_off
Riferimento annuncio 327541 info

Appartamento Via Pietro Ferrara, 1, 80026 Casoria (NA)

9,00
210,00
0
€ 272.000
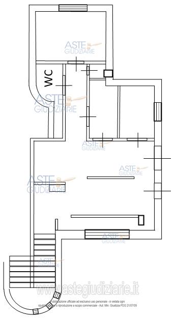
Vendita all'asta Senza incanto, con gara telematica asincrona - LOTTO UNICO: Appartamento disposto su due livelli con locale garage, corte esterna e terreno agricolo di pertinenza adibito a giardino, ubicato in Casoria alla via P. Ferrara n.01. Porzione di appartamento al piano rialzato, unitamente al locale garage, in corso di ristrutturazione. L'appartamento, al piano inferiore, è occupato da terzi sine titulo . Si rinvia all'elaborato peritale per maggiori informazioni circa spazi e ambienti interni e attestazione su conformità urbanistica e catastale. Prezzo base € 272.000,00 (offerta minima € 204.000,00). Data inizio operazioni di vendita: 13/05/2026 ore 12:00. Giudice Annamaria Buffardo. Professionista delegato alla vendita Dott. Francesco Corbello - Email "fr.corbello@gmail.com"; Cell. 3295732301; Tel. 3295732301. Custode Giudiziario Dott. Francesco Corbello - Email "fr.corbello@gmail.com"; Cell. 3295732301; Tel. 3295732301. Rif. Tribunale di Napoli Nord - Espropriazione immobiliare (cartabia) n. 293/2024

Superficie 210,00 mq
Vani 9,00
Bagni
Piano 0

Tipologia di vendita Giudiziaria
Modalità di vendita Asincrona telematica
Termine presentazione offerte 12/05/2026 ore 23:59
Data e ora inizio gara 13/05/2026 ore 12:00
Codice ID astegiudiziarie.it 4344559
9,00
210,00
0
€ 272.000

Ti interessa questa vendita?

north_east

Clicca qui per essere indirizzato alla scheda sul sito di provenienza

Bene di astegiudiziarie.it