highlight_off
Riferimento annuncio 226884 info

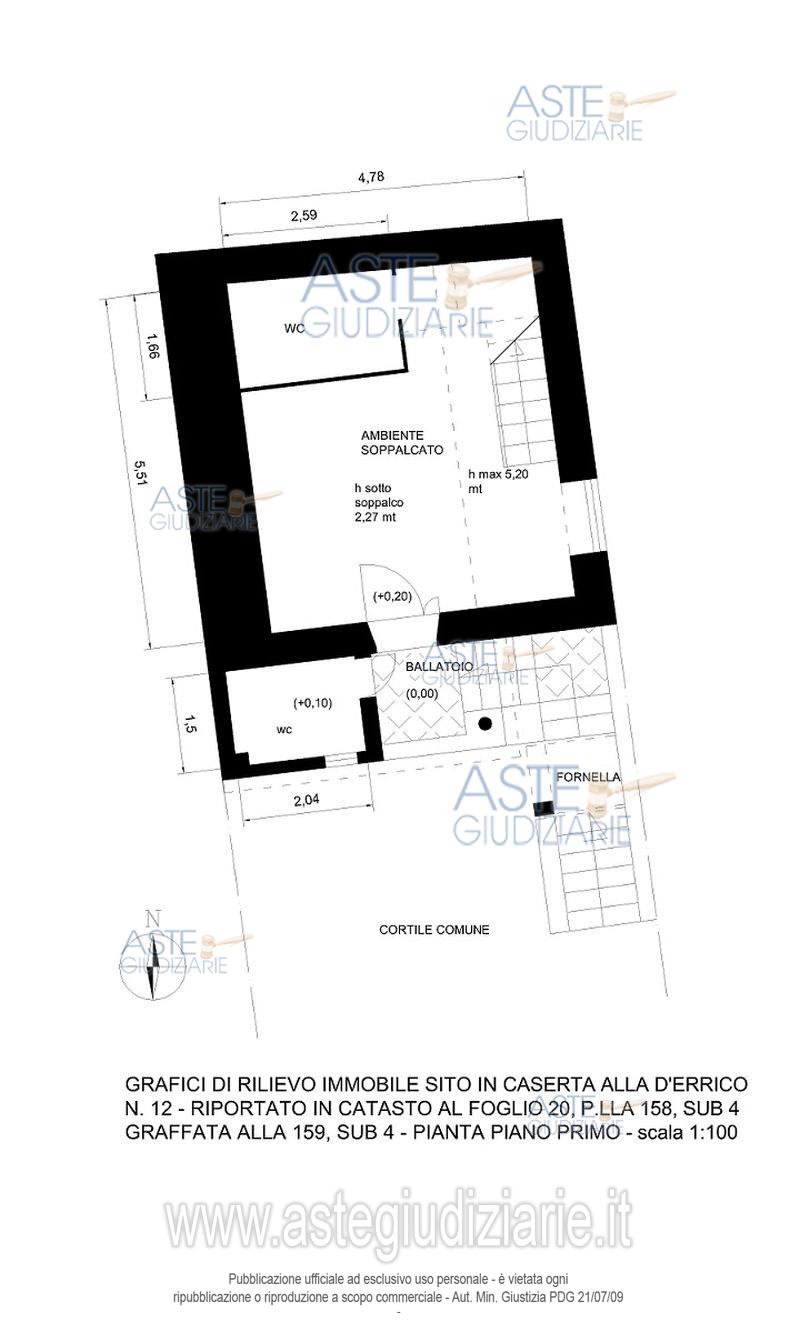
Appartamento via d'errico n 12, 81100 Caserta (CE)

1,20
29,00
0
€ 15.900
Vendita all'asta Senza incanto, con gara telematica asincrona - LOTTO 2: vano in corte comune. Prezzo base € 15.900,00 (offerta minima € 11.925,00). Data inizio operazioni di vendita: 20/01/2026 ore 11:30. Professionista delegato alla vendita Avv. Ferdinando Mancini - Email "ferdimancini@libero.it". Custode Giudiziario Avv. Ferdinando Mancini - Email "ferdimancini@libero.it". Rif. Tribunale di Santa Maria Capua Vetere - Esecuzione immobiliare post legge 80 n. 172/2021

Superficie 29,00 mq
Vani 1,20
Bagni
Piano 0

Tipologia di vendita Giudiziaria
Modalità di vendita Asincrona telematica
Termine presentazione offerte 19/01/2026 ore 12:00
Data e ora inizio gara 20/01/2026 ore 11:30
Codice ID astegiudiziarie.it 4272714
1,20
29,00
0
€ 15.900

Ti interessa questa vendita?

north_east

Clicca qui per essere indirizzato alla scheda sul sito di provenienza

Bene di astegiudiziarie.it