highlight_off
Riferimento annuncio 319511 info

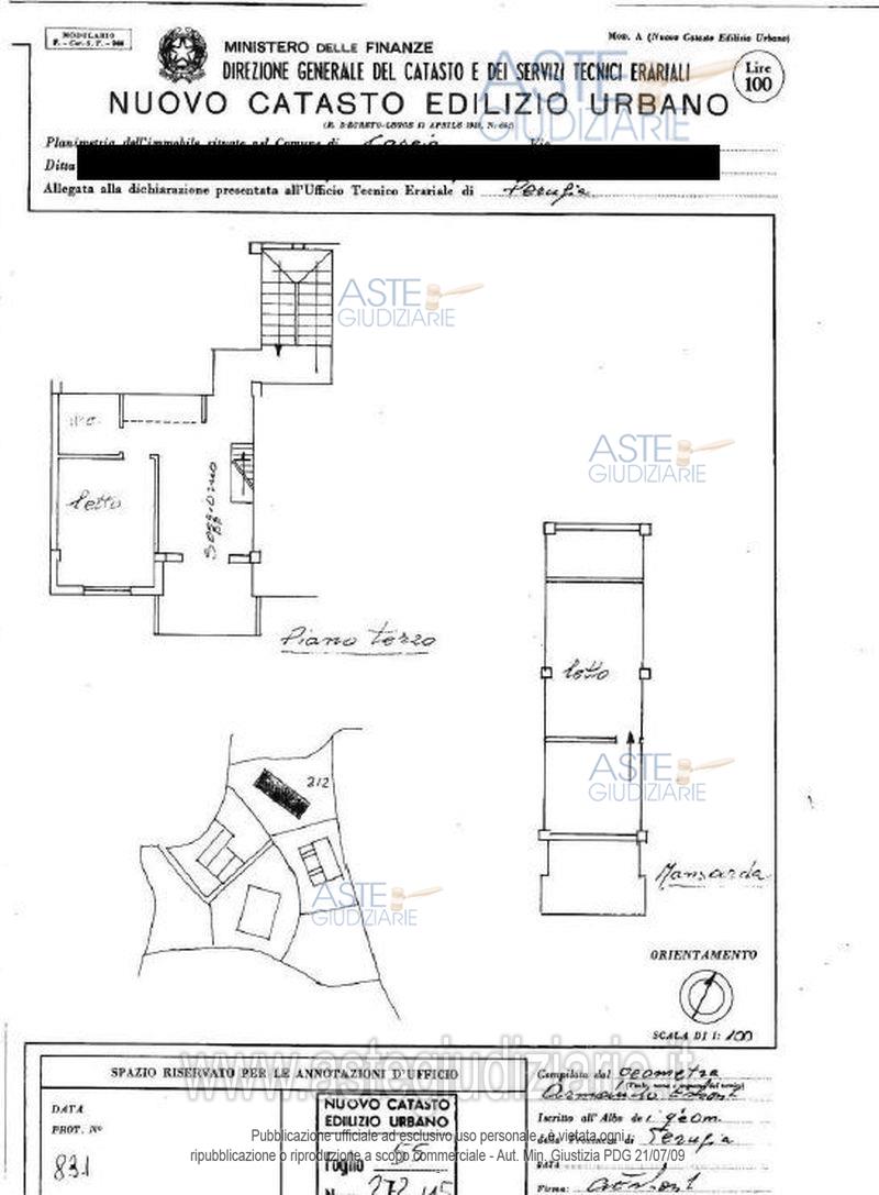
Appartamento Via Cursula, 40, 06043 Cascia PG, Italia, 06043 Cascia (PG)

4,00
66,00
0
€ 20.000
Vendita all'asta Senza incanto, con gara telematica sincrona mista - LOTTO UNICO: CASCIA (PG) VIA CURSULA N. 40. Prezzo base € 20.000,00 (offerta minima € 15.000,00). Data vendita 09/02/2026 ore 10:00. Giudice Dott. Alberto Cappellini. Professionista delegato alla vendita Avv. Francesca Vannozzi - Email "francesca.vannozzi@libero.it"; Tel. 074347300. Custode Giudiziario Ivg Perugia - Email "visite@ivgumbria.com"; Tel. 0755913525. Rif. Tribunale di Spoleto - Espropriazione immobiliare (cartabia) n. 92/2024

Superficie 66,00 mq
Vani 4,00
Bagni
Piano 0

Tipologia di vendita Giudiziaria
Modalità di vendita Sincrona mista
Termine presentazione offerte 01/01/1900 ore 00:00
Data e ora inizio gara 09/02/2026 ore 10:00
Codice ID astegiudiziarie.it 4339064
4,00
66,00
0
€ 20.000

Ti interessa questa vendita?

north_east

Clicca qui per essere indirizzato alla scheda sul sito di provenienza

Bene di astegiudiziarie.it