highlight_off
Riferimento annuncio 302584 info

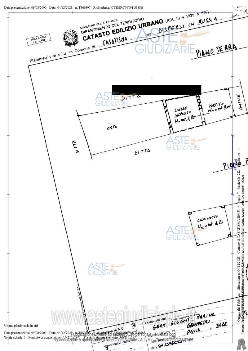
Appartamento Via Dispersi in Russia 16, 27040 Casatisma (PV)

5,50
142,72
0
€ 52.650
Vendita all'asta Senza incanto, con gara telematica asincrona - LOTTO UNICO: Corpo A: Casa di abitazione di corte della superficie commerciale di 142,72 mq semindipendenteCorpo B: una piccola unità immobiliare utilizzata quale deposito posta ai piani terra e primo di un più ampio e vetusto fabbricato (ex fabbricato rurale, antico fienile), piena proprietà per la quota di 1/1. L'immobile si presenta in scarso stato di conservazione ed in completo stato di abbandono. Prezzo base € 52.650,00 (offerta minima € 39.488,00). Data inizio operazioni di vendita: 24/02/2026 ore 15:00. Giudice Francesco Rocca. Professionista delegato alla vendita Avv. Laura Sambartolomeo - Email "segreteria@studiolegalesambartolomeo.it". Custode Giudiziario Istituto Vendite Giudiziarie Di Vigevano - Email "immobiliarivigevano@ifir.it"; Tel. 0381691137. Rif. Tribunale di Pavia - Espropriazione immobiliare (cartabia) n. 386/2023

Superficie 142,72 mq
Vani 5,50
Bagni
Piano 0

Tipologia di vendita Giudiziaria
Modalità di vendita Asincrona telematica
Termine presentazione offerte 01/01/1900 ore 00:00
Data e ora inizio gara 24/02/2026 ore 15:00
Codice ID astegiudiziarie.it 4311745
5,50
142,72
0
€ 52.650

Ti interessa questa vendita?

north_east

Clicca qui per essere indirizzato alla scheda sul sito di provenienza

Bene di astegiudiziarie.it