highlight_off
Riferimento annuncio 322482 info

Appartamento Via Giuseppe Mazzini, 81030 Casaluce CE, Italia, 81030 Casaluce (CE)

5,50
98,00
0
€ 106.000
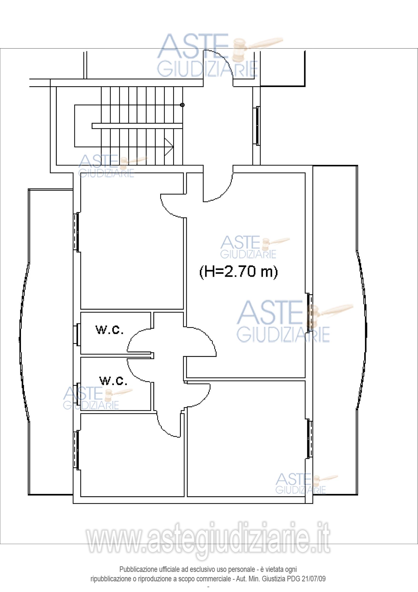
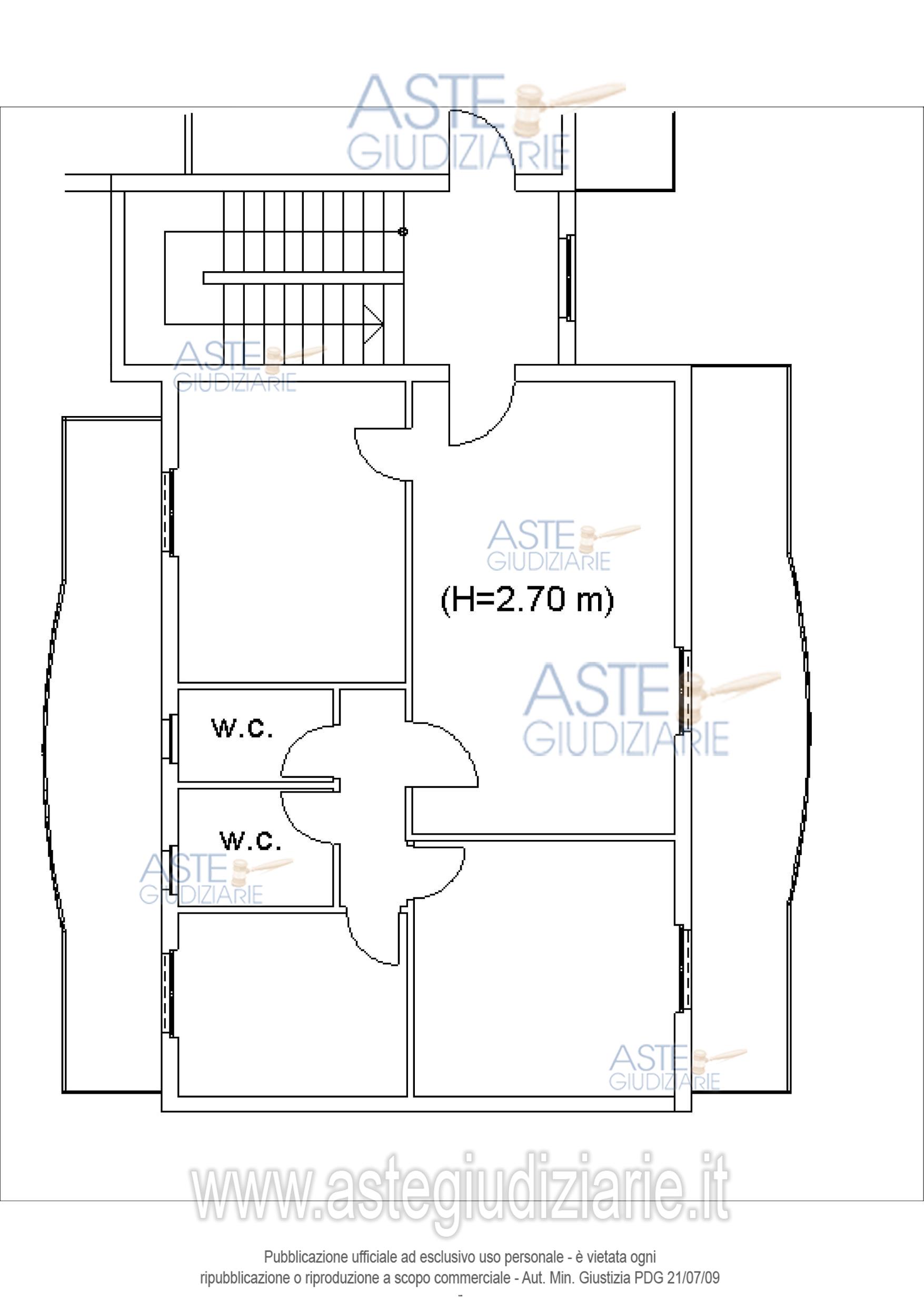
Vendita all'asta Senza incanto, con gara telematica asincrona - LOTTO 1: LOTTO UNO: Proprietà di appartamento sito nel comune di Casaluce (CE) alla via Giuseppe Mazzini snc/angolo Via Michele Comella snc, posto al piano primo, scala B. L’appartamento attesta un’ampia zona giorno suddivisa in cucina abitabile e soggiorno pranzo, afferente ad entrambi gli opposti fronti espositivi est ed ovest, e un altrettanto ampia zona notte disimpegnata da un breve corridoio baricentrico, accogliente tre camere da letto, un ampio bagno e un piccolo ripostiglio/lavanderia baricentrico. Prezzo base € 106.000,00 (offerta minima € 79.500,00). Data inizio operazioni di vendita: 03/03/2026 ore 15:30. Giudice Monica Marrazzo. Professionista delegato alla vendita Avv. Marcello De Giorgio - Email "avvmarcellodegiorgio@libero.it"; Cell. 3358360365; Tel. 0815801274. Custode Giudiziario Avv. Marcello De Giorgio - Email "avvmarcellodegiorgio@libero.it"; Cell. 3358360365; Tel. 0815801274. Rif. Tribunale di Napoli Nord - Espropriazione immobiliare (cartabia) n. 7/2024

Superficie 98,00 mq
Vani 5,50
Bagni
Piano 0

Tipologia di vendita Giudiziaria
Modalità di vendita Asincrona telematica
Termine presentazione offerte 01/01/1900 ore 00:00
Data e ora inizio gara 03/03/2026 ore 15:30
Codice ID astegiudiziarie.it 4341686
5,50
98,00
0
€ 106.000

Ti interessa questa vendita?

north_east

Clicca qui per essere indirizzato alla scheda sul sito di provenienza

Bene di astegiudiziarie.it