highlight_off
Riferimento annuncio 315576 info

Appartamento Via Ciro Chistoni, 32, 46040 Fontanella Grazioli MN, Italia, 46040 Casalromano (MN)

10,00
294,00
0
€ 46.857
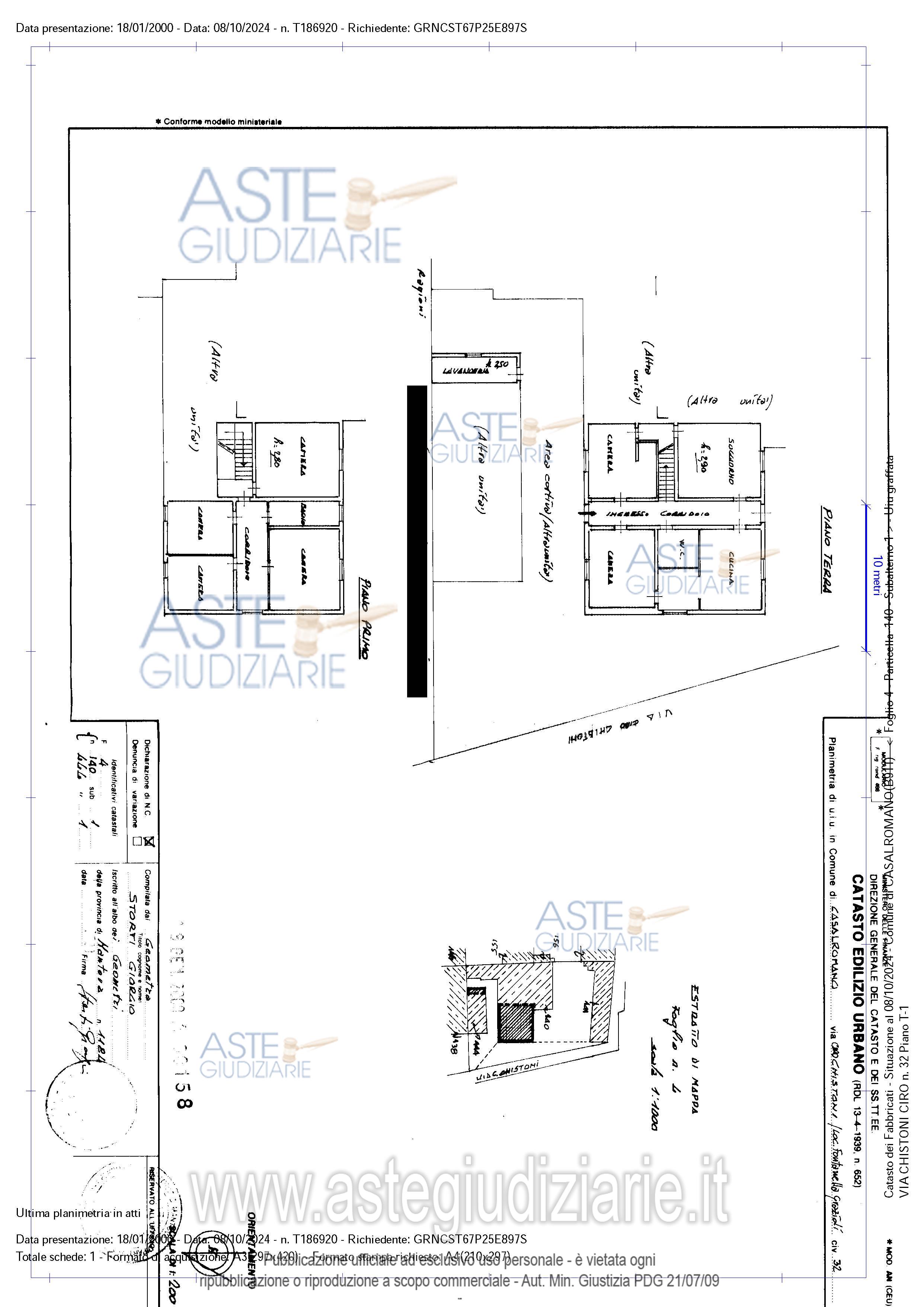
Vendita all'asta Senza incanto, con gara telematica sincrona mista - LOTTO 2: Unità abitativa su due piani, tra loro collegati con scala interna, con circostante area cortiliva comune, composta da: al piano terra da ingresso-corridoio, soggiorno, cucina, bagno, due camere da letto e una lavanderia esterna; al piano primo da corridoio, soggiorno-cucina, bagno, tre camere da letto; unità abitativa su due piani, con circostante area cortiliva comune, composta da: al piano terra da cucina, due rustici; al piano primo da tre camere. Prezzo base € 46.857,00 (offerta minima € 35.143,00). Data vendita 28/05/2026 ore 16:00. Professionista delegato alla vendita: Avv. Cinzia Bergamini - Email "cinzia.bergamini@studioangiolillo.it"; Tel. 0376/220961. Custode Giudiziario: So.Ve.Mo. Srl - Email "immobiliaremantova@sovemo.com"; Tel. 0376/220694. Rif. Tribunale di Mantova - Espropriazione immobiliare (cartabia) n. 176/2023

Superficie 294,00 mq
Vani 10,00
Bagni
Piano 0

Tipologia di vendita Giudiziaria
Modalità di vendita Sincrona mista
Termine presentazione offerte 01/01/1900 ore 00:00
Data e ora inizio gara 28/05/2026 ore 16:00
Codice ID astegiudiziarie.it 4336464
10,00
294,00
0
€ 46.857

Ti interessa questa vendita?

north_east

Clicca qui per essere indirizzato alla scheda sul sito di provenienza

Bene di astegiudiziarie.it