highlight_off
Riferimento annuncio 297477 info

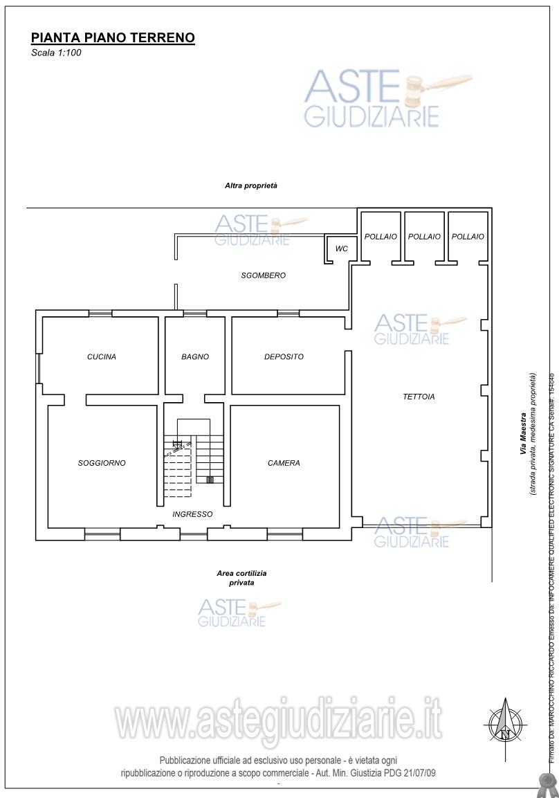
Appartamento Via Maestra, 214, 15033 Terranova AL, Italia, 15033 Casale Monferrato (AL)

5,50
161,00
0
€ 25.600
Vendita all'asta Senza incanto, con gara telematica asincrona - LOTTO UNICO: Abitazione e terreno. Prezzo base € 25.600,00 (offerta minima € 19.200,00). Data inizio operazioni di vendita: 29/01/2026 ore 12:00. Professionista delegato alla vendita Avv. Giorgio Malinverni - Email "studio@avvocatomalinverni.it"; Tel. 0161257770. Custode Giudiziario Avv. Giorgio Malinverni - Email "studio@avvocatomalinverni.it"; Tel. 0161257770. Rif. Tribunale di Vercelli - Espropriazione immobiliare (cartabia) n. 18/2024

Superficie 161,00 mq
Vani 5,50
Bagni
Piano 0

Tipologia di vendita Giudiziaria
Modalità di vendita Asincrona telematica
Termine presentazione offerte 28/01/2026 ore 12:00
Data e ora inizio gara 29/01/2026 ore 12:00
Codice ID astegiudiziarie.it 4321573
5,50
161,00
0
€ 25.600

Ti interessa questa vendita?

north_east

Clicca qui per essere indirizzato alla scheda sul sito di provenienza

Bene di astegiudiziarie.it