Riferimento annuncio 294798
        
    
    Appartamento 84040 Bivio Acquavella SA, Italia, 84040 Casal Velino (SA)
                
                6,00
            
            
                
                237,00
            
            
                
                2
            
            
                
                0
            
        
€ 116.640    
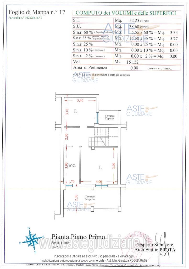
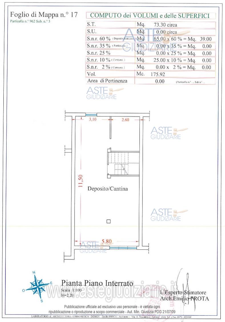
                Vendita all'asta Senza incanto, con gara telematica asincrona - LOTTO UNICO:  Intera proprietà di un appartamento disposto su 4 livelli (piani interrato, terra, primo, secondo e sottotetto), comunicanti tra loro internamente e di fatto adibite ad unica abitazione, oltre alla piena proprietà in ragione di 1/4 di mq. 194,00 di una piccola zona di suolo adibita a parcheggio. Prezzo base € 116.640,00 (offerta minima € 87.480,00). Data inizio operazioni di vendita: 11/12/2025 ore 10:00. Professionista delegato alla vendita Dott. Ciro Carbone. Custode Giudiziario Dott. Ciro Carbone - Email "dott.cirocarbone@gmail.com"; Cell. 3356724108; Tel. 0974824660.  Rif. Tribunale di Vallo della Lucania - Esecuzione immobiliare post legge 80 n. 4/2023
            
   
| Superficie | 237,00 mq | 
|---|---|
| Vani | 6,00 | 
| Bagni | 2 | 
| Piano | 0 | 
| Tipologia di vendita | Giudiziaria | 
|---|---|
| Modalità di vendita | Asincrona telematica | 
| Termine presentazione offerte | 10/12/2025 ore 12:00 | 
| Data e ora inizio gara | 11/12/2025 ore 10:00 |