highlight_off
Riferimento annuncio 325770 info

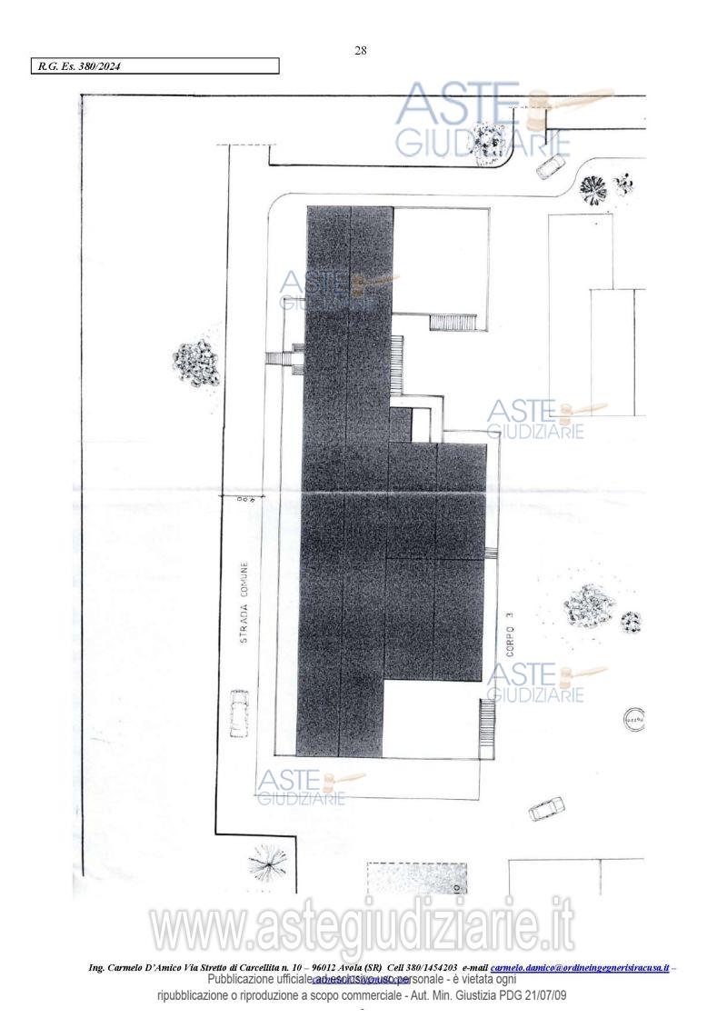
Appartamento Contrada Vaccarizzo, 96013 Carlentini (SR)

105,12
0
€ 45.934
Vendita all'asta Senza incanto, con gara telematica sincrona mista - LOTTO 0: Piena proprietà per la quota di 1/2 ciascuno in comunione legale tra i comproprietari dell’immobile: “appartamento sito nel Comune di Carlentini, C.da Vaccarizzo, censito al Catasto Fabbricati al Foglio 3, particella 5 sub 21; p.T, z.c.1,cat.A/4, di classe 3, di vani 5, rendita di Euro 162,68; confinante con proprietà omissis, proprietà omissis e strada statale Catania-Siracusa. Prezzo base € 45.933,75 (offerta minima € 34.450,31). Data vendita 15/07/2026 ore 09:00. Giudice: Giuseppe Solarino. Professionista delegato alla vendita: Avv. Moena Scala - Email "avv.moenascala@gmail.com"; Cell. 366/2568420. Custode Giudiziario: Avv. Moena Scala - Email "avv.moenascala@gmail.com"; Cell. 366/2568420. Rif. Tribunale di Siracusa - Espropriazione immobiliare (cartabia) n. 380/2024

Superficie 105,12 mq
Vani
Bagni
Piano 0

Tipologia di vendita Giudiziaria
Modalità di vendita Sincrona mista
Termine presentazione offerte 01/01/1900 ore 00:00
Data e ora inizio gara 15/07/2026 ore 09:00
Codice ID astegiudiziarie.it 4344754
105,12
0
€ 45.934

Ti interessa questa vendita?

north_east

Clicca qui per essere indirizzato alla scheda sul sito di provenienza

Bene di astegiudiziarie.it