highlight_off
Riferimento annuncio 121469 info

Appartamento VIA IV NOVEMBRE 3-5, 96013 Carlentini (SR)

7,00
200,00
0
€ 64.406
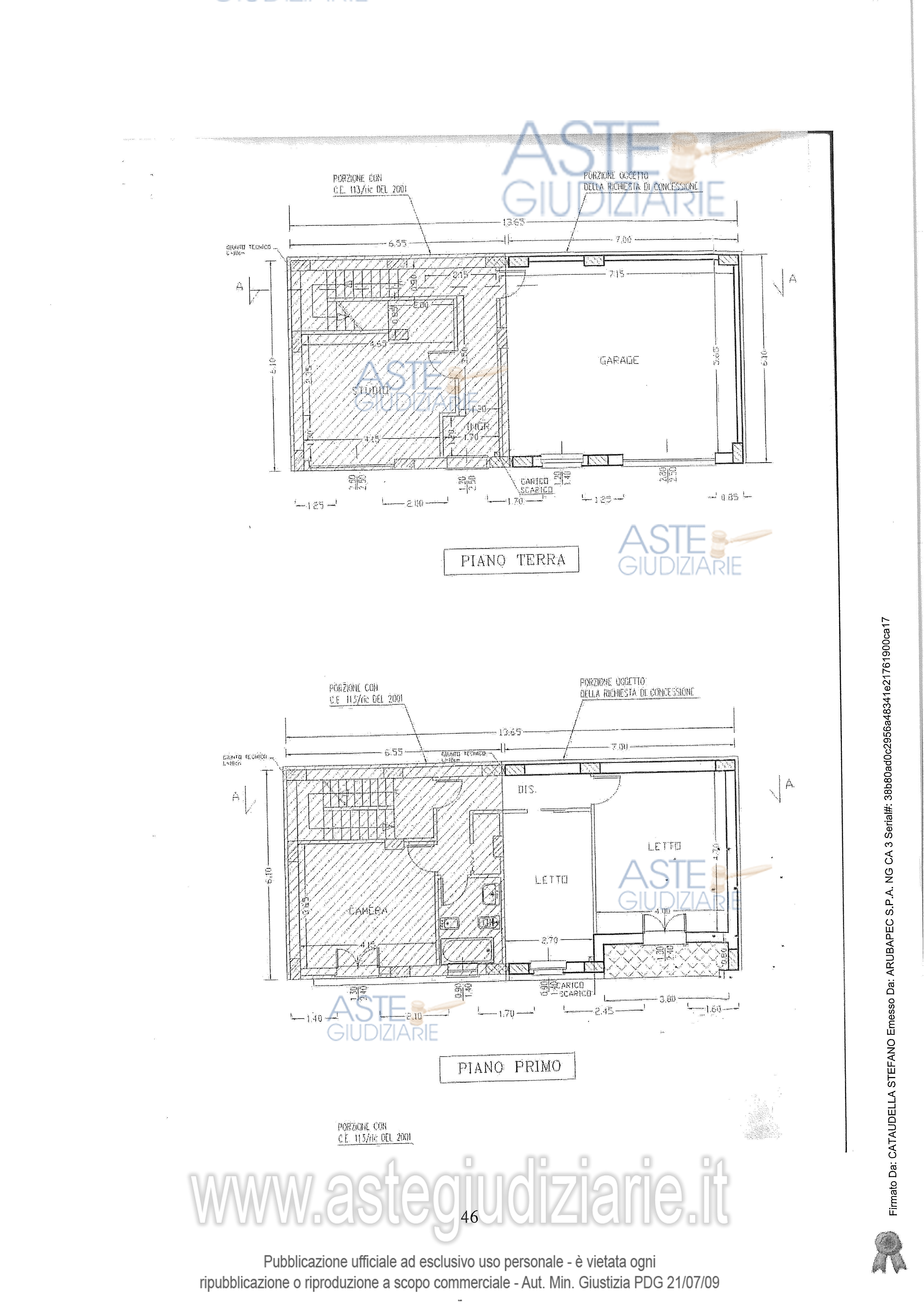
Vendita all'asta Senza incanto - LOTTO UNICO: LOTTO UNICO composto da: Appartamento sito in Carlentini via IV Novembre n. 5, posto al p.t, 1° e 2° piano e terrazzo posto al 3° piano, composto da tre camere da letto, soggiorno -cucina e servizi, e Garage sito in Carlentini via IV Novembre n. 3, posto al p.t. In N.C.E.U. al foglio 34, part. 1127 sub 2, cl. 3, cons. vani 7, rend. € 433,82, cat. A/3, (appartamento) ed in N.C.E.U. al foglio 34, part. 1127 sub 1, cl. 5, cons. 32 mq., rend. €.109,08, cat. C/6 (garage). Prezzo base € 64.406,25 (offerta minima € 48.304,69). Data vendita 16/12/2025 ore 12:00. Professionista delegato alla vendita Avv. Sabrina Giuliano - Email "avv.sabrinagiuliano@gmail.com"; Tel. 0931412001. Custode Giudiziario Avv. Sabrina Giuliano - Email "avv.sabrinagiuliano@gmail.com"; Tel. 0931412001. Rif. Tribunale di Siracusa - Esecuzione immobiliare post legge 80 n. 454/2016

Superficie 200,00 mq
Vani 7,00
Bagni
Piano 0

Tipologia di vendita Giudiziaria
Modalità di vendita Presso il venditore
Termine presentazione offerte 01/01/1900 ore 00:00
Data e ora inizio gara 16/12/2025 ore 12:00
Codice ID astegiudiziarie.it 4231474
7,00
200,00
0
€ 64.406

Ti interessa questa vendita?

north_east

Clicca qui per essere indirizzato alla scheda sul sito di provenienza

Bene di astegiudiziarie.it